$8,495,000
For Sale
No longer available 9/8/2014
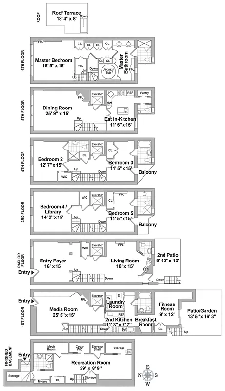
7,113 ft²
$1,194 per ft²
14 rooms
5 beds
8 baths
Townhouse
- Murray Hill
Seller's agents
This home has been saved by 23 users.
Listing by Nest Seekers International, Limited Liability Broker | Brokerage Listing ID: 71619
Common charges
Not applicable
Estimated payment
$48,039/mo
Legal disclaimerAll calculations are estimates provided by StreetEasy for informational purposes only. Actual amounts or financing terms may vary. Please contact your mortgage provider for specifics.Taxes
$5,084/mo
Tax abatement
No info
About
Seller’s agent
description
A single-family townhouse zoned for a home occupation business on the basement and ground levels, the Mansion off Park Avenue is perfect for any lawyer, doctor, private physician, or foreigner looking to establish a New York City business address! Tucked away on a picturesque, tree-lined block, 132 East 36th Street stands apart as an elegant, seven-level townhouse in the neighborhood's Historic District.
Policies
Sorry, policy info isn’t available right now. Check back later.
Home features
Dishwasher
Fireplace
Private outdoor space
Balcony, Patio
Washer/dryer
Building amenities
Services and facilities
Elevator
Wellness and recreation
Hot tub
Shared outdoor space
Deck
Roof deck
About the building
132 East 36th Street
132 East 36th Street, New York, NY 10016
1 unit
5 stories
1864 built
For sale
0 available units for saleFor rent
0 available units for rentDocuments and permits
View documents and permitsProperty history
- Price Change: No changes
- Days on market: 205 daysThis is the number of days the listing has been on StreetEasy.
| Date | Price | Event |
|---|---|---|
9/8/2014 | $8,495,000 | No longer available |
2/15/2014 | $8,495,000 | Listed by Nest Seekers International |
Sign in to take a closer look at how this home compares to similar homes.
Explore Murray Hill
Transit
| Location | Distance |
|---|---|
6at 33rd St | 0.15 miles |
S4567at Grand Central–42nd St | 0.29 miles |
6at 28th St | 0.39 miles |
BDFM7at 5th Av | 0.41 miles |
BDFMNQRWat 34th St–Herald Sq | 0.46 miles |
About Murray Hill
Rental prices shown are base rent before any fees. Visit listings for cost and fees breakdown.
SalesMedian asking price
5 beds
$4.8M
Murray Hill has a lively energy most hours of the day and night. In the morning, the streets are filled with professionals looking polished in their Brooks Brothers suits as they head to work. Come evening, you'll see the crowds returning home decked out in gym clothes and schlepping bags of take-out dinner and Trader Joe's. The neighborhood has a down-to-earth, casual vibe, and there's always a big game airing at one of the many sports bars along the Third Avenue strip. Many of Murray Hill's residents are renters who come and go, but the place eschews intransigence and maintains a familiar, college-town feel.
Learn more about Murray Hill



















































































































