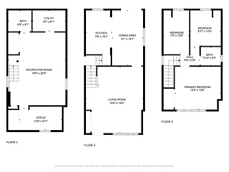
1,260 ft²
$952 per ft²
5 rooms
3 beds
2 baths
Two-family home
- Bensonhurst
Resale
recorded sale
Sold on 12/22/2025
Verified by closing records
Last listed for $1,250,000
Seller's agent
This home has been saved by 14 users.
Listing by Jason Mitchell Real Estate New York LLC, Limited Liability Broker, 4072 Hylan Boulevard, Staten Island, NY 10308
Common charges
Not applicable
Estimated payment
$7,054/mo
Legal disclaimerAll calculations are estimates provided by StreetEasy for informational purposes only. Actual amounts or financing terms may vary. Please contact your mortgage provider for specifics.Taxes
$618/mo
Tax abatement
No info
About
Seller’s agent
Buyer’s agent
description
First time on the market in over 30 years, this rare gem is a fully Detached two-family home currently used as a spacious one-family residence, ideally located in the heart of Dyker Heights, Brooklyn. This well presented 3-bedroom, 2-bath home offers a perfect blend of timeless character and modern updates.
Policies
Sorry, policy info isn’t available right now. Check back later.
Home features
Dishwasher
Fireplace
Hardwood floors
Private outdoor space
Terrace
Washer/dryer
Building amenities
Services and facilities
Parking
Garage
Wellness and recreation
Swimming pool
Shared outdoor space
No info on shared outdoor space
About the building
1413 81st Street
1413 81st Street, Brooklyn, NY 11228
2 units
2 stories
1920 built
For sale
0 available units for saleFor rent
0 available units for rentDocuments and permits
View documents and permitsProperty history
- Price Change: ↓ $75,000 (-5.7%) on 9/29/25
- Days on market: 162 daysThis is the number of days the listing has been on StreetEasy.
| Date | Price | Event |
|---|---|---|
12/22/2025 | $1,200,000 | Sold by Jason Mitchell Real Estate New York LLC |
11/6/2025 | $1,250,000 | In contract |
9/29/2025 | $1,250,000 | Price decreased by 6% |
6/19/2025 | $1,325,000 | Price decreased by 5% |
5/28/2025 | $1,388,888 | Listed by Jason Mitchell Real Estate New York LLC |
Past listing photos
Sign in to take a closer look at how this home compares to similar homes.
Explore Bensonhurst
Transit
| Location | Distance |
|---|---|
Dat 79th St | 0.42 miles |
Dat 71st St | 0.52 miles |
Dat 18th Av | 0.63 miles |
DNat New Utrecht Av | 0.88 miles |
Dat 20th Av | 0.9 miles |



































































































































































































































































