$4,900
For Rent
Base rent only. For total monthly price and additional fees, see .
800 ft²
$73 per ft²
3 rooms
1 bed
1 bath
Co-op
- Upper West Side
Under NYC law, you can't be charged a broker fee if you didn't hire a broker.
Listed By
Open House
Sun, Mar 29 (2–4 PM ET), by appt only
Listing by Brown Harris Stevens, Real Estate Principal Office, 1934 Broadway, New York, NY 10023
Available
Available now
Days on market
Listed today
Last price change
No changes
About
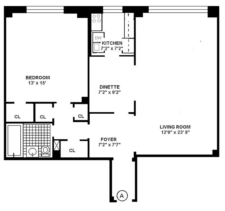
Spacious Prewar One Bedroom with Sunken Living Room Near Central Park
SPONSOR UNIT. COOP BOARD APPROVAL NOT REQUIRED
Welcome to Residence 8A at 15 West 84th Street, a bright and generously proportioned one bedroom offering approximately 800 square feet in a full service Upper West Side cooperative.
This thoughtfully designed home features a classic prewar layout with a large sunken living room measuring nearly 24 feet long, ideal for both relaxing and entertaining.
Policies
Pets allowed
Cats and dogs allowed
Home features
No info on home features
Building amenities
Services and facilities
Bike room
Doorman
Full-time
Elevator
Laundry in building
Live-in super
Wellness and recreation
No info on wellness and recreation
Shared outdoor space
No info on shared outdoor space
About the building
15 West 84th Street
15 West 84th Street, New York, NY 10024
86 units
11 stories
1950 built
Property history
Prices shown are base rent only. For total monthly price and additional fees, see .
| Date | Base rent | Event |
|---|---|---|
3/24/2026 | $4,900 | Listed by Brown Harris Stevens |
1/13/2014 | $2,800 | |
1/8/2014 | $2,800 | Price decreased by 3% |
12/5/2013 | $2,900 |
Sign in to take a closer look at how this home compares to similar homes.
Explore Upper West Side
Transit
| Location | Distance |
|---|---|
BCat 86th St | under 500 feet |
BCat 81st St–Museum of Natural History | 0.16 miles |
1at 86th St | 0.36 miles |
1at 79th St | 0.44 miles |
123at 96th St | 0.58 miles |
About Upper West Side
Rental prices shown are base rent before any fees. Visit listings for cost and fees breakdown.
SalesMedian asking price
1 bed
$795K
RentalsMedian asking base rent
1 bed
$4,395
Sandwiched between two beautiful parks, the Upper West Side is one of the greenest spots in Manhattan. For that reason, it is a perennial favorite. The Upper West Side is relaxed, but never dull. There are plenty of low-key bars and restaurants to frequent along Amsterdam Avenue, and Broadway is an always-bustling commercial center. The wide, tree-lined streets still boast many mom-and-pop stores. Less posh than the Upper East Side, it is more easily accessible by public transportation, and real estate prices are just as, if not more, expensive.
Learn more about Upper West SideSimilar homes
Prices shown are base rent only and don't include any fees. Visit each listing to see a complete cost breakdown.
Similar Homes looks at ad spend and other factors like location, price, and number of beds and baths.














































































































