$2,000,000
For Sale
- ft²
7 rooms
3 beds
2 baths
Co-op
- Upper West Side
Resale
This home has been saved by 384 users.
Listing by Corcoran, Limited Liability Broker, 590 Madison Avenue, New York, NY 10022 | Brokerage Listing ID: 23610370
Maintenance fees
$7,809/mo
Estimated payment
$18,054/mo
Legal disclaimerAll calculations are estimates provided by StreetEasy for informational purposes only. Actual amounts or financing terms may vary. Please contact your mortgage provider for specifics.Taxes
Included in maintenance fees
Tax abatement
No info
About
Seller’s agent
description
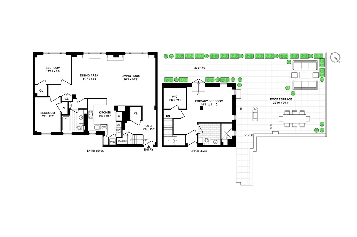
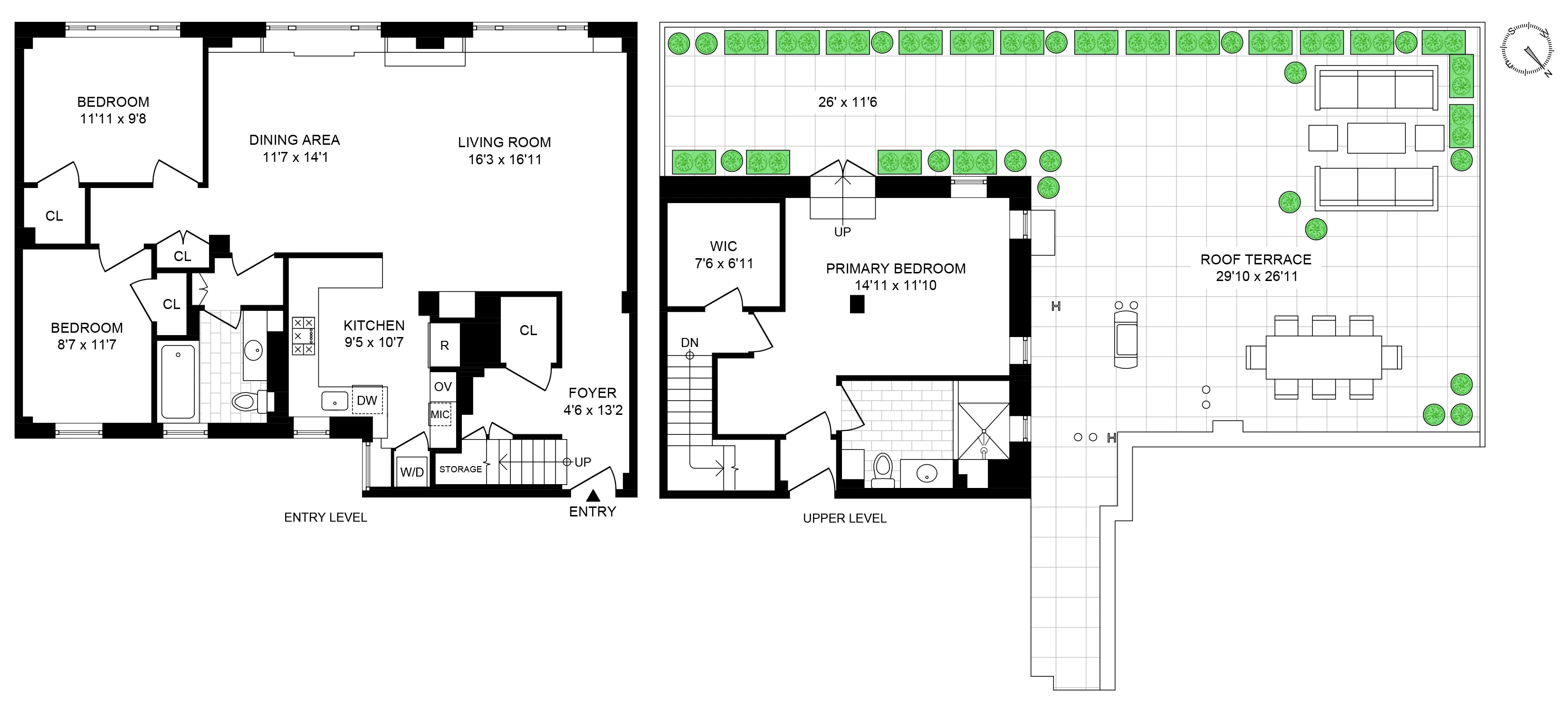
!!!BEST DEAL ON THE UWS | SELLER MUST SELL!!!
Elegant and sophisticated Penthouse living on the Upper West Side. Move right into this newly renovated 3 bedroom, 2 bathroom duplex home with a sun-drenched 1,048 sqft private roof terrace. Enter into a gracious foyer which opens to an expansive living and dining room with six large south facing windows, beamed ceilings, custom moldings and beautiful custom built-ins with bookshelves.
Policies
Pets allowed
Cats and dogs allowed
Home features
Central air
Dishwasher
Hardwood floors
Private outdoor space
Roof deck, Terrace
View
City, Skyline
Washer/dryer
Building amenities
Services and facilities
Bike room
Doorman
Part-time
Elevator
Laundry in building
Live-in super
Wheelchair access
Wellness and recreation
No info on wellness and recreation
Shared outdoor space
Roof deck
About the building
150 West 87th Street
150 West 87th Street, New York, NY 10024
41 units
9 stories
1914 built
For sale
1 available units for saleFor rent
0 available units for rentDocuments and permits
View documents and permitsProperty history
- Price Change: ↓ $350,000 (-14.9%) on 11/21/25
- Days on market: 139 daysThis is the number of days the listing has been on StreetEasy.
| Date | Price | Event |
|---|---|---|
11/21/2025 | $2,000,000 | Price decreased by 15% |
10/23/2025 | $2,350,000 | Price decreased by 6% |
10/16/2025 | $2,495,000 | Price decreased by 9% |
9/22/2025 | $2,750,000 | Listed by Corcoran |
1/30/2024 | $3,100,000 |
Sign in to take a closer look at how this home compares to similar homes.
Explore Upper West Side
Transit
| Location | Distance |
|---|---|
1at 86th St | 0.14 miles |
BCat 86th St | 0.26 miles |
123at 96th St | 0.36 miles |
BCat 81st St–Museum of Natural History | 0.39 miles |
1at 79th St | 0.41 miles |
About Upper West Side
Rental prices shown are base rent before any fees. Visit listings for cost and fees breakdown.
SalesMedian asking price
3 beds
$3M
RentalsMedian asking base rent
3 beds
$9,000
Sandwiched between two beautiful parks, the Upper West Side is one of the greenest spots in Manhattan. For that reason, it is a perennial favorite. The Upper West Side is relaxed, but never dull. There are plenty of low-key bars and restaurants to frequent along Amsterdam Avenue, and Broadway is an always-bustling commercial center. The wide, tree-lined streets still boast many mom-and-pop stores. Less posh than the Upper East Side, it is more easily accessible by public transportation, and real estate prices are just as, if not more, expensive.
Learn more about Upper West Side










































































































































