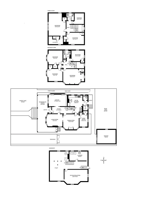
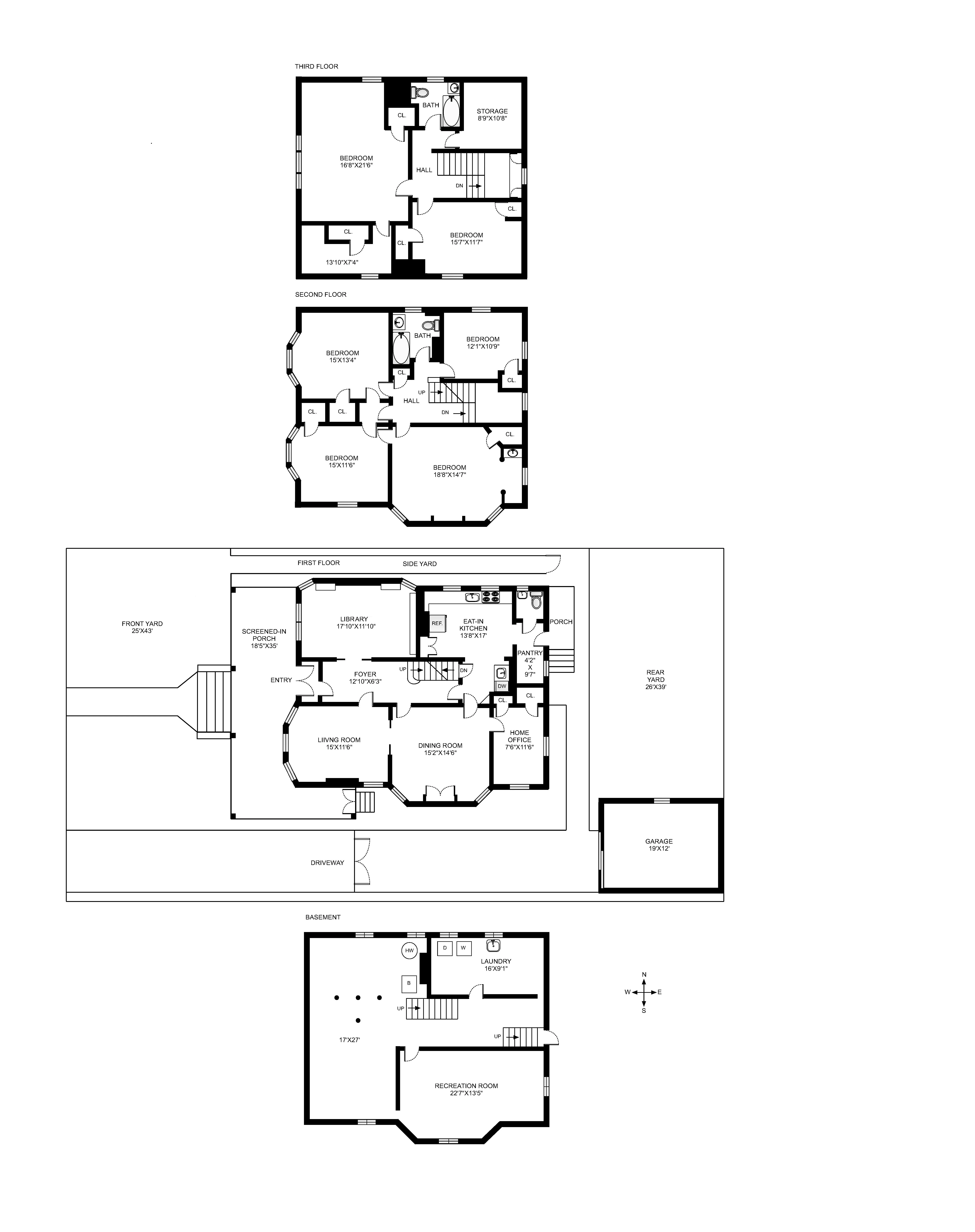
3,000 ft²
$893 per ft²
12 rooms
6 beds
2.5 baths
House
- Prospect Park South
Resale
recorded sale
Sold on 1/8/2025
Verified by closing records
Last listed for $2,875,000
Seller's agents
This home has been saved by 38 users.
Listing by Brown Harris Stevens, Real Estate Principal Office, 125 Seventh Avenue, Brooklyn, NY 11215
Common charges
Not applicable
Estimated payment
$16,883/mo
Legal disclaimerAll calculations are estimates provided by StreetEasy for informational purposes only. Actual amounts or financing terms may vary. Please contact your mortgage provider for specifics.Taxes
$793/mo
Tax abatement
No info
About
Seller’s agent
description
You Had Me At "Screened Porch"
This Classic Prospect Park South home greets you with a screened wrap-around porch that takes full advantage of its ideal location-nestled privately in the middle of the block surrounded by mature landscaping. But that's just the start of falling for this charming home that has been loved by the same family for over 50 years.
Policies
Sorry, policy info isn’t available right now. Check back later.
Home features
Central air
Dishwasher
Hardwood floors
Private outdoor space
Garden
View
Garden
Washer/dryer
Building amenities
Services and facilities
Bike room
Laundry in building
Parking
Garage
Wellness and recreation
No info on wellness and recreation
Shared outdoor space
Courtyard
About the building
151 Westminster Road
151 Westminster Road, Brooklyn, NY 11218
1 unit
2 stories
1899 built
For sale
0 available units for saleFor rent
0 available units for rentDocuments and permits
View documents and permitsProperty history
- Price Change: No changes
- Days on market: 27 daysThis is the number of days the listing has been on StreetEasy.
| Date | Price | Event |
|---|---|---|
1/8/2025 | $2,681,250 | Sold by Brown Harris Stevens |
10/9/2024 | $2,875,000 | In contract |
9/12/2024 | $2,875,000 | Listed by Brown Harris Stevens |
Past listing photos
Sign in to take a closer look at how this home compares to similar homes.
Explore Prospect Park South
Transit
| Location | Distance |
|---|---|
BQat Beverly Rd | 0.18 miles |
BQat Cortelyou Rd | 0.34 miles |
BQat Church Av | 0.37 miles |
Fat Fort Hamilton Parkway | 0.53 miles |
Fat Church Av | 0.62 miles |







































































































































































































































































