1,420 ft²
$876 per ft²
7 rooms
2 beds
2.5 baths
Condo
- Central Harlem
Resale
reported sale
Sold on 5/3/2021
Not yet verified by closing records
Seller's agent
This home has been saved by 44 users.
Listing by Compass, Corporate Broker, 641 Lexington Avenue, New York, NY 10022
Common charges
$450/mo
Estimated payment
$7,553/mo
Legal disclaimerAll calculations are estimates provided by StreetEasy for informational purposes only. Actual amounts or financing terms may vary. Please contact your mortgage provider for specifics.Taxes
$808/mo
Tax abatement
No info
About
Seller’s agent
description
*Please note: For all property appointments, you will be given required forms to fill out in advance of your in-person viewing. We thank you for your cooperation during these times by wearing a mask and helping to keep everyone safe. We look forward to showing you this beautiful home.*
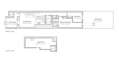
Welcome To Your Own Private Garden Oasis. Enter into an expansive floor-through duplex offering 2 bedrooms, 2.
Policies
Sorry, policy info isn’t available right now. Check back later.
Home features
Central air
Dishwasher
Hardwood floors
Private outdoor space
Garden
Washer/dryer
Building amenities
Services and facilities
Bike room
Wellness and recreation
No info on wellness and recreation
Shared outdoor space
Courtyard
About the building
155 West 126th Street
155 West 126th Street, New York, NY 10027
12 units
5 stories
1900 built
For sale
0 available units for saleFor rent
0 available units for rentDocuments and permits
View documents and permitsProperty history
- Price Change: ↑ $15,000 (+1.2%) on 1/3/21
- Days on market: 57 daysThis is the number of days the listing has been on StreetEasy.
| Date | Price | Event |
|---|---|---|
5/3/2021 | $1,245,000 | Sold by Compass |
1/29/2021 | $1,245,000 | In contract |
1/3/2021 | $1,245,000 | Price increased by 1% |
12/3/2020 | $1,230,000 | Listed by Compass |
Past listing photos
Sign in to take a closer look at how this home compares to similar homes.
Explore Central Harlem
Transit
| Location | Distance |
|---|---|
23at 125th St | 0.12 miles |
ABCDat 125th St | 0.29 miles |
23at 135th St | 0.43 miles |
BCat 135th St | 0.52 miles |
23at 116th St | 0.52 miles |
About Central Harlem
Rental prices shown are base rent before any fees. Visit listings for cost and fees breakdown.
SalesMedian asking price
2 beds
$704K
RentalsMedian asking base rent
2 beds
$3,444
Harlem begins directly above Central Park, where you will find busy thoroughfares adjacent to quiet tree-lined blocks lined with brownstones and pre-war apartment buildings.
Learn more about Central Harlem


































































































































