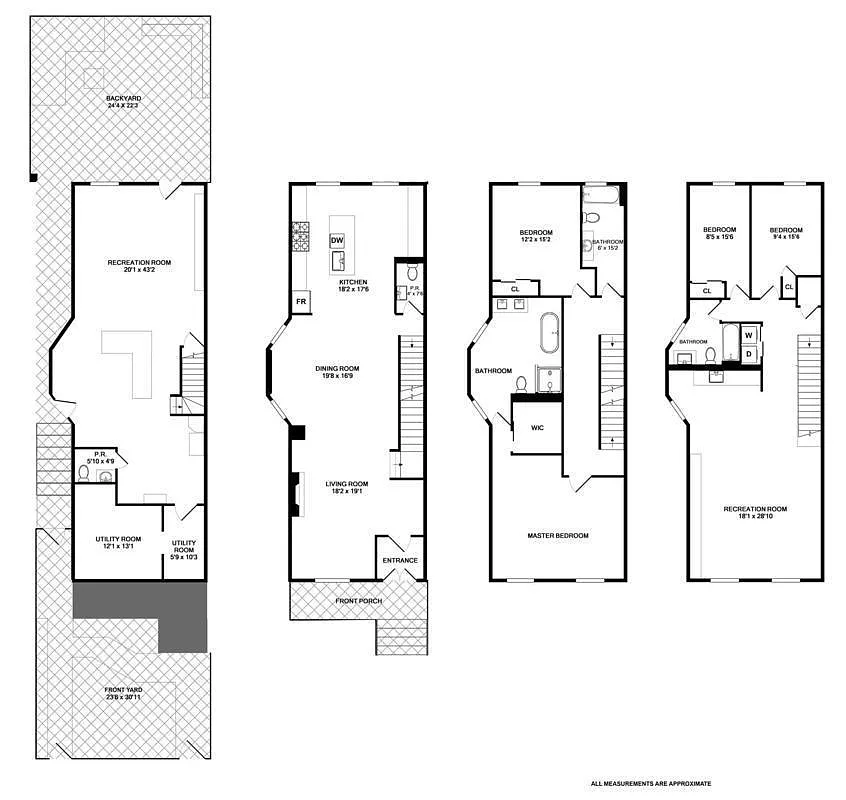
4,400 ft²
$852 per ft²
6 rooms
4 beds
5 baths
House
- Central Harlem
recorded sale
Sold on 6/5/2017
Verified by closing records
Last listed for $3,775,000
Seller's agents
Tamara Marotta
Douglas Elliman
This home has been saved by 98 users.
Listing by Douglas Elliman, Limited Liability Broker | Brokerage Listing ID: 2400436
Common charges
Not applicable
Estimated payment
$19,400/mo
Taxes
$188/mo
Tax abatement
No info
About
Seller’s agent
description
IN CONTRACT - Astor Row Townhouse. Welcome to one of the most historic and tranquil blocks in New York City. This landmarked row of unique townhouses, built in 1880, offers country living in vibrant central Harlem. The charm of these houses is evident when you turn onto the block and are amazed at the sight of a delightful row of brick houses with large wooden front porches, perhaps an apple tree or flowers in a front yard.
Policies
Sorry, policy info isn’t available right now. Check back later.
Home features
Central air
Fireplace
Private outdoor space
Garden
Washer/dryer
Building amenities
Sorry, building amenities aren't available right now. Check back later.
About the building
16 West 130 Th Street House (Astor
16 West 130th Street, New York, NY 10037
1 unit
3 stories
1880 built
For sale
0 available units for saleFor rent
0 available units for rentDocuments and permits
View documents and permitsProperty history
- Price Change: ↓ $220,000 (-5.5%) on 1/24/17
- Days on market: 313 days
| Date | Price | Event |
|---|---|---|
6/5/2017 | $3,750,000 | Sold by Douglas Elliman |
6/5/2017 | $3,775,000 | No longer available |
3/8/2017 | $3,775,000 | In contract |
1/24/2017 | $3,775,000 | Price decreased by 6% |
10/13/2016 | $3,995,000 | Price decreased by 6% |
Past listing photos
Sign in to take a closer look at how this home compares to similar homes.
Explore Central Harlem
Transit
| Location | Distance |
|---|---|
23at 125th St | 0.26 miles |
23at 135th St | 0.29 miles |
456at 125th St | 0.4 miles |
ABCDat 125th St | 0.56 miles |
BCat 135th St | 0.61 miles |
About Central Harlem
Rental prices shown are base rent before any fees. Visit listings for cost and fees breakdown.
SalesMedian asking price
4 beds
$2.08M
RentalsMedian asking base rent
4 beds
$4,997
Harlem begins directly above Central Park, where you will find busy thoroughfares adjacent to quiet tree-lined blocks lined with brownstones and pre-war apartment buildings.
Learn more about Central Harlem

























































































































































