$3,500,000
For Sale
No longer available 6/3/2020
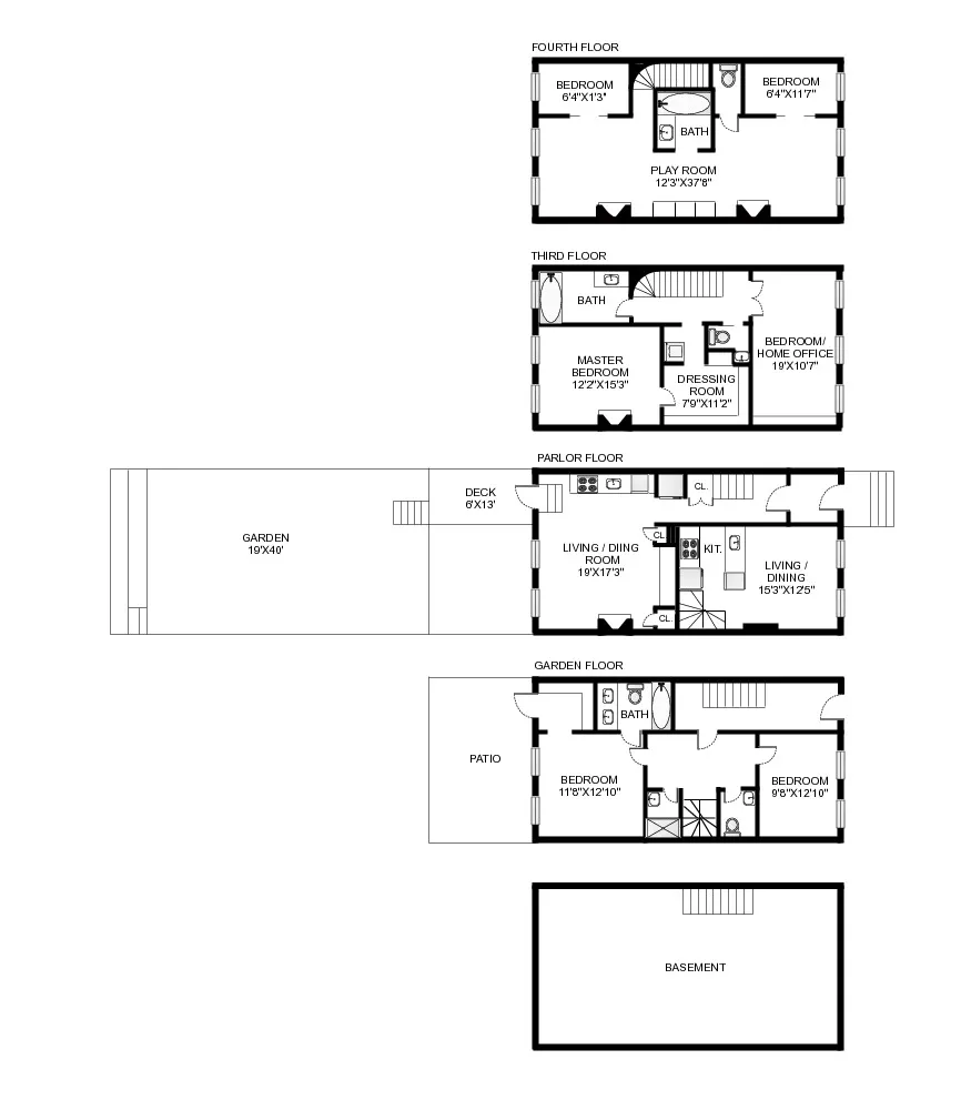
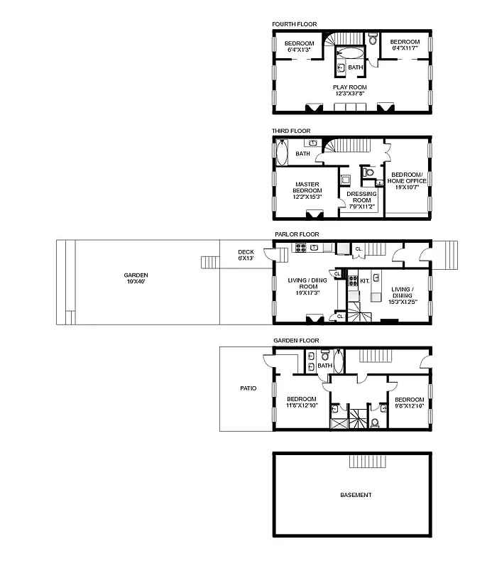
3,140 ft²
$1,114 per ft²
9 rooms
6 beds
4.5 baths
Two-family home
- Boerum Hill
Resale
Seller's agent
This home has been saved by 201 users.
Listing by Brown Harris Stevens, Real Estate Principal Office, 100 Fifth Avenue, New York, NY 10011
Common charges
Not applicable
Estimated payment
$18,975/mo
Legal disclaimerAll calculations are estimates provided by StreetEasy for informational purposes only. Actual amounts or financing terms may vary. Please contact your mortgage provider for specifics.Taxes
$902/mo
Tax abatement
No info
About
Seller’s agent
description
Architect: Bastien Halard
Two Family Brick Townhouse
Lot: 20 x 100
Building: 20 x 38
Floors: 4
Earn income and live in this gorgeously renovated home. The architect and sellers had a vision to create a charming townhouse that reminds one of a chateau in France and is yet distinctly Brooklyn. By creating a separate duplex rental with a private patio, the new owners can collect income and have a triplex and large lush garden all their own.
Policies
Sorry, policy info isn’t available right now. Check back later.
Home features
Central air
Dishwasher
Fireplace
Hardwood floors
Private outdoor space
Garden, Terrace
View
City, Park
Washer/dryer
Building amenities
Services and facilities
Laundry in building
Wellness and recreation
No info on wellness and recreation
Shared outdoor space
No info on shared outdoor space
About the building
163 Wyckoff Street
163 Wyckoff Street, Brooklyn, NY 11217
2 units
4 stories
1899 built
For sale
0 available units for saleFor rent
0 available units for rentDocuments and permits
View documents and permitsProperty history
- Price Change: ↓ $250,000 (-6.7%) on 9/24/19
- Days on market: 315 daysThis is the number of days the listing has been on StreetEasy.
| Date | Price | Event |
|---|---|---|
6/3/2020 | $3,500,000 | No longer available |
9/24/2019 | $3,500,000 | Price decreased by 7% |
7/24/2019 | $3,750,000 | Listed by Brown Harris Stevens |
1/21/2011 | $1,100,000 | |
2/26/2010 | $0 |
Sign in to take a closer look at how this home compares to similar homes.
Explore Boerum Hill
Transit
| Location | Distance |
|---|---|
FGat Bergen St | 0.19 miles |
ACGat Hoyt & Schermerhorn | 0.29 miles |
23at Hoyt St | 0.39 miles |
2345at Nevins St | 0.42 miles |
FGat Carroll St | 0.45 miles |
About Boerum Hill
Rental prices shown are base rent before any fees. Visit listings for cost and fees breakdown.
SalesMedian asking price
6 beds
$3.6M
Energetic and inviting, Boerum Hill continues its run as one of New York City's most desirable neighborhoods, all while remaining a secret quietly shared amongst its happy residents. Its appeal and vibrancy stem from its housing stock. Handsome Greek revival and Italianate townhouses line the wide, tree-lined streets. These beautiful brick and limestone buildings have long been a mecca for Brooklynites seeking an enclave close to Downtown Brooklyn and lower Manhattan — but far from crowds and highrises.
Main drags like Bergen Street, Atlantic Avenue, and Smith Street are peppered with charming boutiques like Collier West in addition to welcoming cafes, bars, and restaurants, including Rucola, French Louie, and Bacchus, to name a few. Fans of new construction will find new condo developments too. Saint Marks Place, The Hendrick, The Boerum, and The Bergen have expanded buyers' opportunities. Renters will also find plenty of options here in a broad range of prices, from the genuinely affordable to the luxurious.













































































































































































































































