1,058 ft²
$538 per ft²
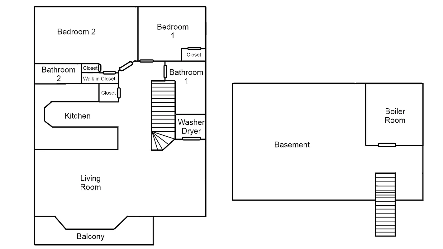
8 rooms
2 beds
2 baths
Condo
- Beechhurst
Resale
recorded sale
Sold on 12/18/2024
Verified by closing records
Last listed for $599,000
Seller's agent
This home has been saved by 11 users.
Listing by Apple Realty Group Corp, Limited Liability Broker, 39 07 Prince Street Ste, Flushing, NY 11354
Common charges
$845/mo
Estimated payment
$4,375/mo
Legal disclaimerAll calculations are estimates provided by StreetEasy for informational purposes only. Actual amounts or financing terms may vary. Please contact your mortgage provider for specifics.Taxes
$446/mo
Tax abatement
No info
About
Seller’s agent
description
Fantastic Waterfront View Condominium With A Private Gated Community. This unit provides 2 spacious bedrooms and 2 full bathrooms. 1 car parking spot. A balcony with magnificent views of the waters surrounding the Throgs Neck Bridge. Enjoy amazing sunrises sitting on the balcony. Basement includes a plentiful amount of closet space. 1 car parking spot. Q15 to Flushing & Qm2 To Midtown.
Policies
Sorry, policy info isn’t available right now. Check back later.
Home features
Central air
Private outdoor space
Balcony
View
Water
Washer/dryer
Building amenities
Services and facilities
Laundry in building
Wellness and recreation
No info on wellness and recreation
Shared outdoor space
No info on shared outdoor space
About the building
167-09 Powells Cove Boulevard
167-09 Powells Cove Boulevard, Whitestone, NY 11357
- units
- stories
- built
For sale
0 available units for saleFor rent
0 available units for rentDocuments and permits
View documents and permitsProperty history
- Price Change: ↓ $26,000 (-4.2%) on 9/27/24
- Days on market: 350 daysThis is the number of days the listing has been on StreetEasy.
| Date | Price | Event |
|---|---|---|
12/18/2024 | $570,000 | Sold by Apple Realty Group Corp |
11/14/2024 | $599,000 | In contract |
9/27/2024 | $599,000 | Price decreased by 4% |
5/30/2024 | $625,000 | Price decreased by 4% |
4/9/2024 | $649,000 | Price decreased by 2% |
Past listing photos
Sign in to take a closer look at how this home compares to similar homes.
Explore Beechhurst
Schools
District 25
Schools zoned for this address:
PK, 0K, 01, 02, 03, 04, 05, SE
06, 07, 08, SE
School attendance zone boundaries are not guaranteed to be accurate — they are provided by a third party and subject to change. Check with the applicable school district prior to making a decision based on these boundaries.









































































































































































































































































