2,322 ft²
$1,395 per ft²
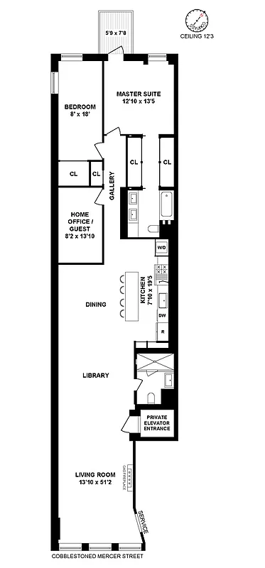
5 rooms
3 beds
2 baths
Co-op
- Soho
Resale
reported sale
Sold on 3/2/2018
Not yet verified by closing records
Seller's agent
This home has been saved by 64 users.
Listing by Compass, Corporate Broker, 10 East 53rd Street, New York, NY 10022
Maintenance fees
$2,691/mo
Estimated payment
$19,074/mo
Legal disclaimerAll calculations are estimates provided by StreetEasy for informational purposes only. Actual amounts or financing terms may vary. Please contact your mortgage provider for specifics.Taxes
Included in maintenance fees
Tax abatement
No info
About
Seller’s agent
description
SOHO LIFE.
Enter this capacious loft via your private keyed elevator. The space boasts over 12-foot ceilings, white oak plank floors, three-zone split-system central air conditioning, steam shower, coordinated Lutron dimmers, wiring for sound and internet-controlled utilities, exposed brick, vented washer-dryer, abundant in-unit storage and a large private basement storage cage, meticulous built-ins...
Policies
Pets allowed
Cats and dogs allowed
Home features
Washer/dryer
Building amenities
Services and facilities
Elevator
Wellness and recreation
No info on wellness and recreation
Shared outdoor space
Roof deck
About the building
169 Mercer Street
169 Mercer Street, New York, NY 10012
7 units
7 stories
1920 built
For sale
0 available units for saleFor rent
0 available units for rentDocuments and permits
View documents and permitsProperty history
- Price Change: ↓ $150,000 (-4.4%) on 9/20/17
- Days on market: 127 daysThis is the number of days the listing has been on StreetEasy.
| Date | Price | Event |
|---|---|---|
3/2/2018 | $3,240,000 | Sold by Compass |
1/11/2018 | $3,240,000 | In contract |
9/20/2017 | $3,240,000 | Price decreased by 4% |
9/6/2017 | $3,390,000 | Listed by Compass |
Past listing photos
Sign in to take a closer look at how this home compares to similar homes.
Explore Soho
Transit
| Location | Distance |
|---|---|
BDFM6at Broadway–Lafayette St | under 500 feet |
RWat Prince St | under 500 feet |
BDFM6at Bleecker St | 0.15 miles |
6at Spring St | 0.22 miles |
CEat Spring St | 0.3 miles |
About Soho
Rental prices shown are base rent before any fees. Visit listings for cost and fees breakdown.
SalesMedian asking price
3 beds
$5.15M
RentalsMedian asking base rent
3 beds
$12,497
SoHo has some of the best people-watching in Manhattan, as it is a mecca for the trendy, sophisticated downtown elite. The north-south running streets are often sites of fashion shoots as well as home to upscale European boutiques. The east-west running streets are busier and always clogged with vendors selling everything from iPhone cases to incense. One you hit Broadway, you could be in just about any mall in America with retail chains, tourists, teenagers, and disgruntled New Yorkers dominating the avenue. The energy in SoHo is fast-paced and all hustle and bustle; it is a quintessentially vibrant New York neighborhood, but certainly not for the faint-of-heart or those looking for some peace and quiet.
Learn more about Soho
































































































