$2,124
For Rent
Base rent only. For total monthly price and additional fees, see .
No longer available 9/28/2024
- ft²
2 rooms
Studio
1 bath
Rental unit
- Yorkville
Under NYC law, you can't be charged a broker fee if you didn't hire a broker.
Listed By
Glenwood
This home has been saved by 18 users.
Listing by Glenwood, Corporate Broker | Brokerage Listing ID: 6920
Searching with a housing voucher, like Section 8?
Unavailable
No longer available on 9/28/2024
Days on market
0 days
Last price change
No changes
About
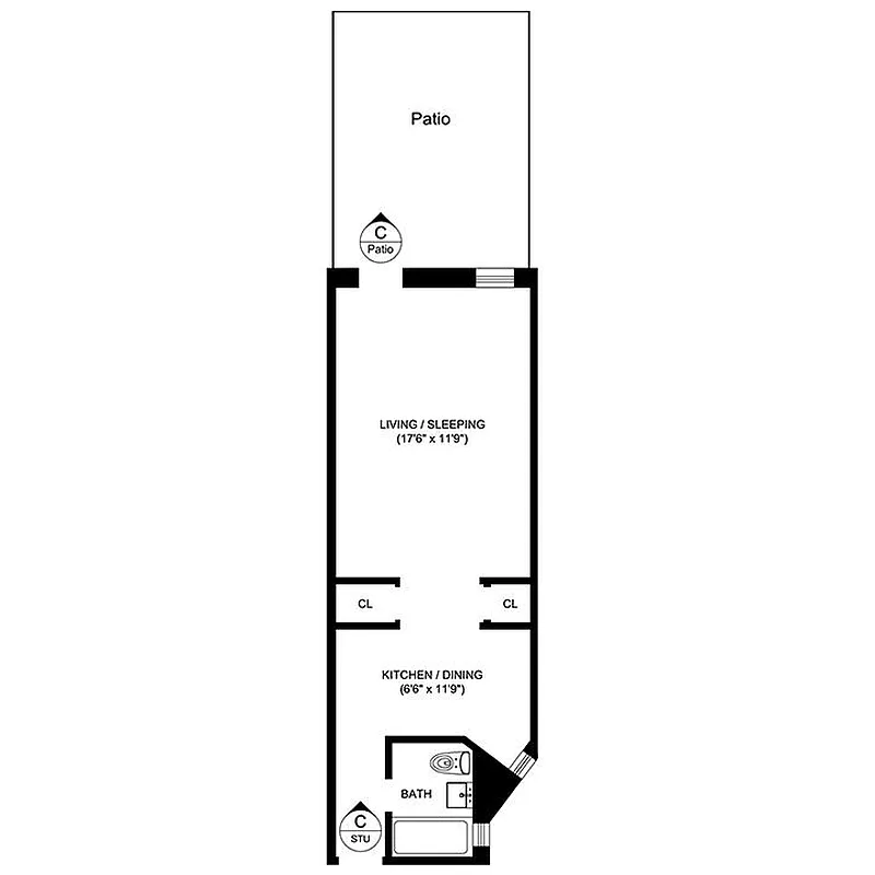
Rent Stabilized studio with outdoor patio in prewar building. Stainless appliances in kitchen. See Website for FHA Compliance Info
Policies
Sorry, policy info isn’t available right now. Check back later.
Home features
Dishwasher
Building amenities
No info on building amenities
About the building
1737 York Avenue
1737 York Avenue, New York, NY 10128
62 units
5 stories
1920 built
Property history
Prices shown are base rent only. For total monthly price and additional fees, see .
| Date | Base rent | Event |
|---|---|---|
9/28/2024 | $2,124 | No longer available |
9/28/2024 | $2,124 | Listed by Glenwood |
7/22/2021 | $2,072 | |
6/30/2021 | $2,072 |
Sign in to take a closer look at how this home compares to similar homes.
Explore Yorkville
Transit
| Location | Distance |
|---|---|
Qat 96th St | 0.31 miles |
Qat 86th St | 0.33 miles |
456at 86th St | 0.53 miles |
6at 96th St | 0.55 miles |
6at 103rd St | 0.78 miles |
About Yorkville
Rental prices shown are base rent before any fees. Visit listings for cost and fees breakdown.
SalesMedian asking price
Studio
$399.5K
RentalsMedian asking base rent
Studio
$2,795
When George Washington commandeered the building site that would eventually become Gracie Mansion, he probably didn't imagine that this peaceful, riverside enclave would become the lively residential neighborhood it is today. Between then and now, Yorkville has seen a lot of change. Tony mansions and elevated trains went up at the turn of the century and then came down in the postwar years as a middle-class population moved in.
Now, the neighborhood is a haven of high-rise co-ops and condos interspersed with quiet rows of townhouses. The mixed housing stock makes Yorkville a practical choice for anyone seeking a slowed-down Manhattan vibe. Several avenues over from the throngs of Lexington and Third Avenues, Yorkville maintains a low-key, no-frills feel — it's a place where you'll find more diners and donut shops than upscale lounges and boutiques. This homey attitude is writ in its storefronts, where the food is kept simple and the owners are often from around the block.
Similar homes
Prices shown are base rent only and don't include any fees. Visit each listing to see a complete cost breakdown.
Similar Homes looks at ad spend and other factors like location, price, and number of beds and baths.

































































