$1,789,000
For Sale
No longer available 1/10/2018
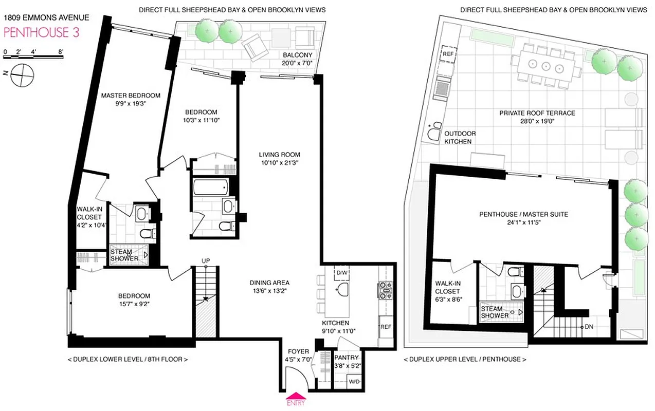
1,900 ft²
$941 per ft²
8 rooms
4 beds
3 baths
Condo
- Sheepshead Bay
Seller's agents
This home has been saved by 9 users.
Listing by Corcoran, Limited Liability Broker, 372 West Broadway, New York, NY 10012 | Brokerage Listing ID: 5218940
Common charges
$567/mo
Estimated payment
$9,769/mo
Legal disclaimerAll calculations are estimates provided by StreetEasy for informational purposes only. Actual amounts or financing terms may vary. Please contact your mortgage provider for specifics.Taxes
$156/mo
Tax abatement
No info
About
Seller’s agent
description
Top Floor Penthouse at South Brooklyn's Premier Waterfront Development!
View The Video Tour: www.youtube.com/watch?v=1j2NT1cUhvU&t=19s
Stunning vistas from every window and outdoor space are present at this approximately 1,900 Sq. Ft. duplex penthouse in South Brooklyn's first LEED-certified building. The ultra-luxury condominium is a fusion of contemporary and traditional opulence.
Policies
Sorry, policy info isn’t available right now. Check back later.
Home features
Central air
Dishwasher
Private outdoor space
Balcony, Terrace
Building amenities
Services and facilities
Doorman
Full-time
Laundry in building
Parking
Storage space
Wellness and recreation
Swimming pool
Shared outdoor space
Roof deck
About the building
1807 Emmons Avenue
1807 Emmons Avenue, Brooklyn, NY 11235
58 units
7 stories
2015 built
For sale
0 available units for saleFor rent
0 available units for rentDocuments and permits
View documents and permitsProperty history
- Price Change: No changes
- Days on market: 57 daysThis is the number of days the listing has been on StreetEasy.
| Date | Price | Event |
|---|---|---|
1/10/2018 | $1,789,000 | No longer available |
10/18/2017 | $1,789,000 | In contract |
8/22/2017 | $1,789,000 | Listed by Corcoran |
Sign in to take a closer look at how this home compares to similar homes.
Explore Sheepshead Bay
Transit
| Location | Distance |
|---|---|
BQat Sheepshead Bay | 0.25 miles |
BQat Brighton Beach | 0.67 miles |
BQat Neck Rd | 0.81 miles |
Qat Ocean Parkway | 1.05 miles |
BQat Av U | 1.08 miles |















































































































































































