$2,150
For Rent
Base rent only. For total monthly price and additional fees, see .
Rented 2/13/2025
- ft²
1 room
Studio
1 bath
Rental unit
- Morningside Heights
Under NYC law, you can't be charged a broker fee if you didn't hire a broker.
Listed By
This home has been saved by 60 users.
Listing by New York Residence, Corporate Broker, 160 East 188th Street, Bronx, NY 10468
Searching with a housing voucher, like Section 8?
Unavailable
Rented on 2/13/2025
Days on market
16 days
Last price change
No changes
About
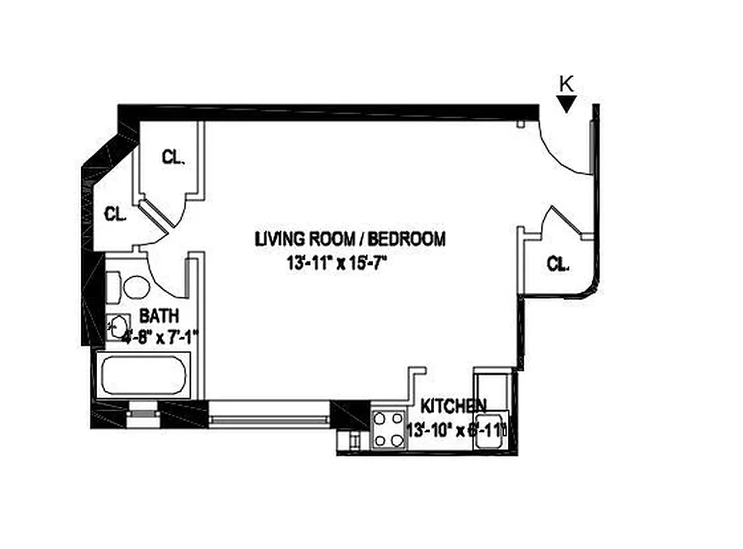
Beautiful East facing studio located on the fourth floor of an impeccably kept building with an elevator and on-site laundry, and a live in super, all located at the coveted 185 Claremont Avenue.
The large living space can comfortably fit a queen bed and other furniture. The kitchen is replete with granite countertops, ample cabinet space, and includes a dishwasher and microwave.
The location is ideal.
Policies
Sorry, policy info isn’t available right now. Check back later.
Home features
Hardwood floors
View
City
Building amenities
Services and facilities
Laundry in building
Wellness and recreation
No info on wellness and recreation
Shared outdoor space
No info on shared outdoor space
About the building
185 Claremont Avenue
185 Claremont Avenue, New York, NY 10027
62 units
6 stories
1941 built
Property history
Prices shown are base rent only. For total monthly price and additional fees, see .
| Date | Base rent | Event |
|---|---|---|
2/13/2025 | $2,150 | Rented by New York Residence |
1/2/2025 | $2,150 | In contract |
12/17/2024 | $2,150 | Listed by New York Residence |
8/16/2019 | $2,000 | |
8/7/2019 | $2,000 |
Past listing photos
Sign in to take a closer look at how this home compares to similar homes.
Explore Morningside Heights
Transit
| Location | Distance |
|---|---|
1at 125th St | 0.11 miles |
1at 116th St–Columbia University | 0.46 miles |
ABCDat 125th St | 0.49 miles |
1at 137th St–City College | 0.57 miles |
BCat 135th St | 0.67 miles |
About Morningside Heights
Rental prices shown are base rent before any fees. Visit listings for cost and fees breakdown.
SalesMedian asking price
Studio
$305K
RentalsMedian asking base rent
Studio
$4,500
In many ways, Morningside Heights reminds of Park Slope or the nearby Upper West Side, especially in its ample green space, shady streets, and laid-back, homey feel. What sets Morningside Heights apart, however, is the number of colleges and universities in and near the area.
Learn more about Morningside HeightsSimilar homes
Prices shown are base rent only and don't include any fees. Visit each listing to see a complete cost breakdown.
Similar Homes looks at ad spend and other factors like location, price, and number of beds and baths.



























































