$4,100
for rent
Base rent only. For total monthly price and additional fees, see .
Rented 6/30/2023
- ft²
5 rooms
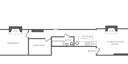
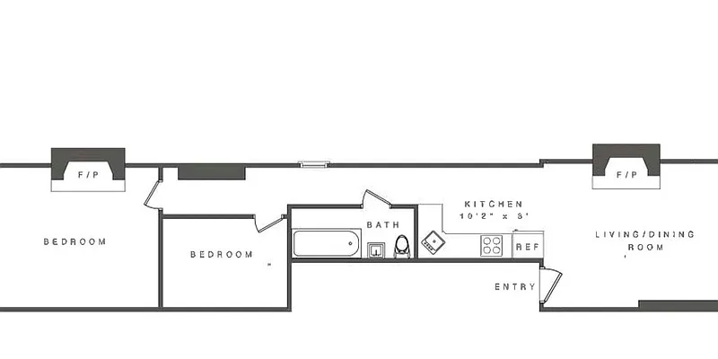
1 bed
1 bath
Rental unit
- Little Italy
Under NYC law, you can't be charged a broker fee if you didn't hire a broker.
Listed by
This home has been saved by 32 users.
Listing by Vector New York, LLC, Real Estate Principal Office, 106 West 105th Street, New York, NY 10025
Unavailable
Rented on 6/30/2023
Days on market
26 days
Last price change
↓ $200 (-4.7%) on 6/12/23
About
*Spacious, Modern and Full of Exposed Bricks!*
*True 1 bed + Home office 1 bath located in Prime Little Italy on the corner of Hester and Mulberry street! Right outside your door step are all the neighborhoods best bars, restaurants, shopping, train links and more!*
The unit boasts 1 King sized bedrooms, home office, large living room/dining room area, chefs kitchen with stainless steel appliances...
Policies
Sorry, policy info isn’t available right now. Check back later.
Home features
Hardwood floors
View
City
Building amenities
No info on building amenities
About the building
189 Hester Street
189 Hester Street, New York, NY 10013
8 units
5 stories
1900 built
Property history
Prices shown are base rent only. For total monthly price and additional fees, see .
| Date | Base rent | Event |
|---|---|---|
6/30/2023 | $4,100 | Rented by Vector New York, LLC |
6/12/2023 | $4,100 | Price decreased by 5% |
6/4/2023 | $4,300 | Listed by Vector New York, LLC |
2/3/2022 | $4,000 | |
1/24/2022 | $4,000 |
Past listing photos
Sign in to take a closer look at how this home compares to similar homes.
Explore Little Italy
Transit
| Location | Distance |
|---|---|
JNQRWZ6at Canal St | 0.13 miles |
BDat Grand St | 0.2 miles |
JZat Bowery | 0.25 miles |
6at Spring St | 0.27 miles |
JZ456at Chambers St | 0.4 miles |
Similar homes
Prices shown are base rent only and don't include any fees. Visit each listing to see a complete cost breakdown.
Similar Homes looks at ad spend and other factors like location, price, and number of beds and baths.
































































