771 ft²
$1,277 per ft²
5 rooms
2 beds
1 bath
Condo
- Greenpoint
Resale
reported sale
Sold on 5/28/2020
Not yet verified by closing records
Seller's agents
This home has been saved by 315 users.
Listing by Compass, Corporate Broker, 110 5th Avenue, New York, NY 10011
Common charges
$338/mo
Estimated payment
$5,956/mo
Legal disclaimerAll calculations are estimates provided by StreetEasy for informational purposes only. Actual amounts or financing terms may vary. Please contact your mortgage provider for specifics.Taxes
$15/mo
Tax abatement
No info
About
Seller’s agent
description
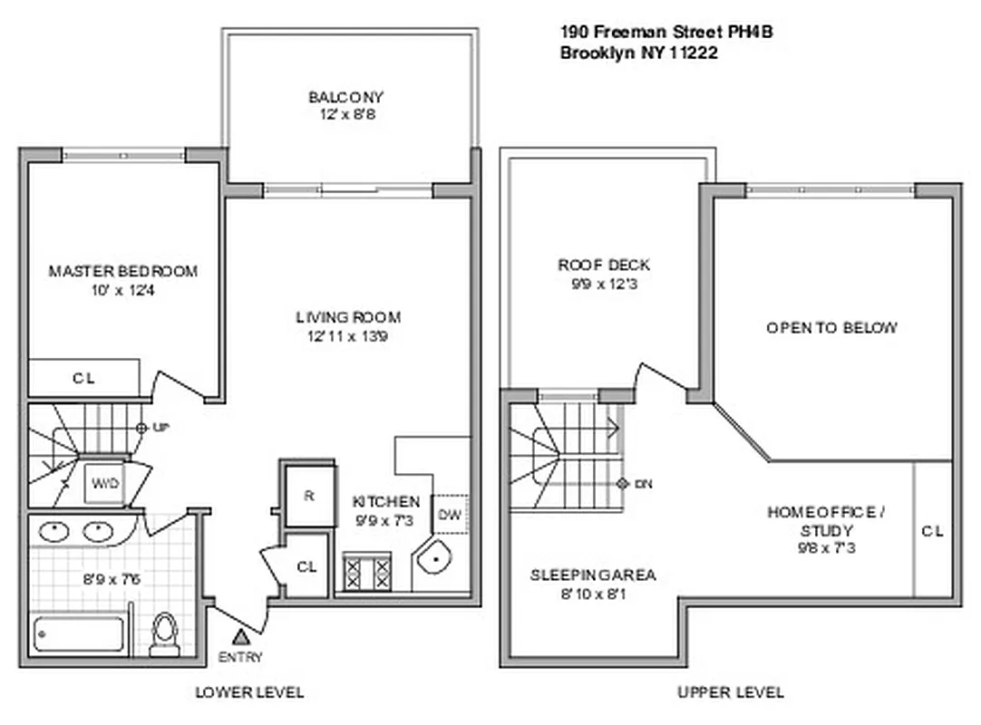
Welcome to Penthouse 4B at 190 Freeman Street - a unique opportunity to own a convertible two-bedroom duplex condo in the heart of Greenpoint with huge private outdoor space, soaring high ceilings and breathtaking open view of Brooklyn and Manhattan. Located on a quiet tree-lined block just 5 blocks from the subway and a short walk to the East River Ferry that will take you to Manhattan in 15 minutes.
Policies
Sorry, policy info isn’t available right now. Check back later.
Home features
No info on home features
Building amenities
Services and facilities
Doorman
Virtual
Wellness and recreation
No info on wellness and recreation
Shared outdoor space
Roof deck
About the building
190 Freeman Street
190 Freeman Street, Brooklyn, NY 11222
8 units
4 stories
2007 built
For sale
0 available units for saleFor rent
0 available units for rentDocuments and permits
View documents and permitsProperty history
- Price Change: No changes
- Days on market: 125 daysThis is the number of days the listing has been on StreetEasy.
| Date | Price | Event |
|---|---|---|
5/28/2020 | $985,000 | Sold by Compass |
3/2/2020 | $985,000 | In contract |
10/29/2019 | $985,000 | Listed by Compass |
Past listing photos
Sign in to take a closer look at how this home compares to similar homes.
Explore Greenpoint
Transit
| Location | Distance |
|---|---|
Gat Greenpoint Av | 0.15 miles |
Ferryat India Street Ferry Landing | 0.42 miles |
LIRRat Long Island City | 0.52 miles |
7at Vernon Blvd–Jackson Av | 0.57 miles |
Ferryat Hunters Point Ferry Landing | 0.61 miles |
About Greenpoint
Rental prices shown are base rent before any fees. Visit listings for cost and fees breakdown.
SalesMedian asking price
2 beds
$1.88M
RentalsMedian asking base rent
2 beds
$5,600
A former industrial and maritime neighborhood, Greenpoint was once primarily home to Polish and Irish immigrants and is now home to a large artist's community. The nightlife, restaurant and music scene have burgeoned in recent years as energy and activity in Williamsburg creeps north towards Greenpoint. As a result, the neighborhood's low-key, tucked-away vibe may not last for long, although poor access to public transportation may deter some new residents. Despite all the recent change, Greenpoint still hangs onto its rich history and an old-school community.
Learn more about Greenpoint







































































