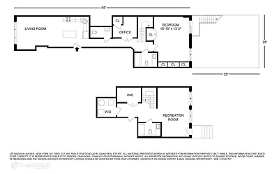
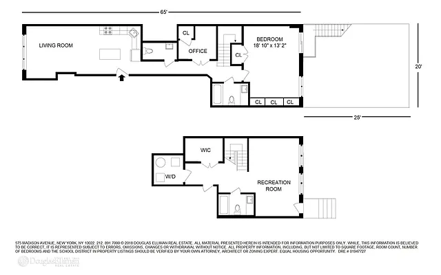
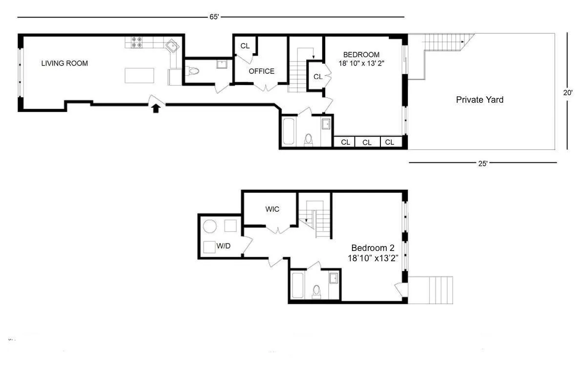
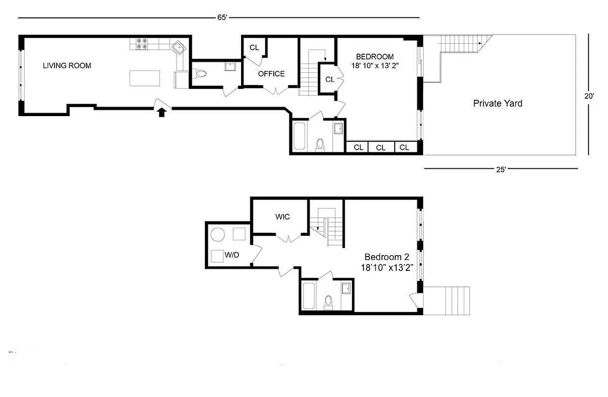
1,617 ft²
$648 per ft²
6 rooms
3 beds
2.5 baths
Condo
- Bedford-Stuyvesant
Resale
reported sale
Sold on 2/13/2020
Not yet verified by closing records
Seller's agents
Compass
This home has been saved by 134 users.
Listing by Compass, Corporate Broker, 110 5th Avenue, New York, NY 10011
Common charges
$634/mo
Estimated payment
$6,568/mo
Taxes
$5/mo
Tax abatement
421a expires in 2031
About
Seller’s agent
Description
This stunning two-bedroom, convertible three-bedroom, Bed-Stuy duplex provides retreat-like living in heart of the city with great sunlight, expansive living spaces and a glorious 500 sq ft of private yard.
Abundant light and airiness welcome you home in this 1,675-square-foot home's expansive upper level. In the spacious living/dining room, chic wide-plank hardwood paves the floors and exposed brick adds warmth.
Policies
Sorry, policy info isn’t available right now. Check back later.
Home features
Central air
Dishwasher
Private outdoor space
Garden
Washer/dryer
Building amenities
Services and facilities
Doorman
Virtual
Live-in super
Wellness and recreation
No info on wellness and recreation
Shared outdoor space
No info on shared outdoor space
About the building
197 Spencer Street
197 Spencer Street, Brooklyn, NY 11205
8 units
8 stories
2002 built
For sale
1 available units for saleFor rent
0 available units for rentDocuments and permits
View documents and permitsProperty history
- Price Change: ↓ $76,000 (-6.8%) on 6/5/19
- Days on market: 293 days
| Date | Price | Event |
|---|---|---|
2/11/2020 | $1,049,000 | |
11/20/2019 | $1,049,000 | |
7/11/2019 | $1,049,000 | |
2/13/2020 | $1,049,000 | Sold by Compass |
11/20/2019 | $1,049,000 | In contract |
Past listing photos
Sign in to take a closer look at how this home compares to similar homes.
Explore Bedford-Stuyvesant
Transit
| Location | Distance |
|---|---|
Gat Bedford–Nostrand Avs | 0.19 miles |
Gat Myrtle–Willoughby Avs | 0.34 miles |
Gat Classon Av | 0.37 miles |
Gat Flushing Av | 0.56 miles |
Gat Clinton–Washington Avs | 0.65 miles |
About Bedford-Stuyvesant
Rental prices shown are base rent before any fees. Visit listings for cost and fees breakdown.
SalesMedian asking price
3 beds
$1.95M
RentalsMedian asking base rent
3 beds
$4,300
Bedford-Stuyvesant is a vast Brooklyn neighborhood filled with historic brownstones. Fans of Victorian architecture will appreciate the striking abodes in the leafy historic district.
Learn more about Bedford-Stuyvesant






























































































































