4,296 ft²
$756 per ft²
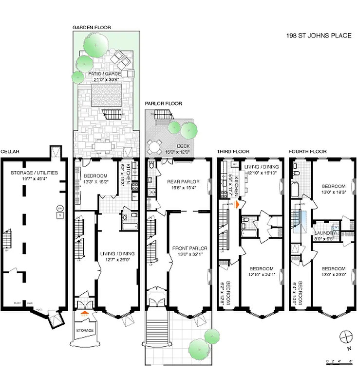
13 rooms
6 beds
4 baths
Two-family home
- Park Slope
reported sale
Sold on 8/5/2013
Not yet verified by closing records
Seller's agents
Patricia Neinast
Corcoran
This home has been saved by 11 users.
Listing by Corcoran, Limited Liability Broker | Brokerage Listing ID: 2565688
Common charges
Not applicable
Estimated payment
$17,113/mo
Legal disclaimerAll calculations are estimates provided by StreetEasy for informational purposes only. Actual amounts or financing terms may vary. Please contact your mortgage provider for specifics.Taxes
$679/mo
Tax abatement
No info
About
Seller’s agent
description
Welcome to the magnificent 198 Saint Johns Place. Built in 1876, by Brooklyn owner-builder Samuel Henry, this mansion is among the earliest Neo-Grec brownstones in the area. This landmarked home is 21 feet wide and 50 feet deep allowing for 4,296sf of beautifully proportioned rooms. The home is highly detailed throughout with gorgeous parquet floors, stunning pier mirrors, intricate mantels and charming pocket doors.
Policies
Sorry, policy info isn’t available right now. Check back later.
Home features
Fireplace
Building amenities
No info on building amenities
About the building
198 Saint John's Place
198 Saint John'S Place, Brooklyn, NY 11217
2 units
3 stories
1899 built
For sale
0 available units for saleFor rent
0 available units for rentDocuments and permits
View documents and permitsProperty history
- Price Change: ↓ $250,000 (-7.1%) on 4/17/13
- Days on market: 51 daysThis is the number of days the listing has been on StreetEasy.
| Date | Price | Event |
|---|---|---|
8/2/2013 | $2,950,000 | |
8/6/2013 | $3,250,000 | Sold by Corcoran |
8/5/2013 | $3,250,000 | No longer available |
5/20/2013 | $3,250,000 | In contract |
4/17/2013 | $3,250,000 | Price decreased by 7% |
Past listing photos
Sign in to take a closer look at how this home compares to similar homes.
Explore Park Slope
Transit
| Location | Distance |
|---|---|
BQat 7th Av | 0.1 miles |
23at Grand Army Plaza | 0.13 miles |
23at Bergen St | 0.34 miles |
Rat Union St | 0.51 miles |
LIRRat Atlantic Terminal | 0.54 miles |
About Park Slope
Rental prices shown are base rent before any fees. Visit listings for cost and fees breakdown.
SalesMedian asking price
6 beds
$4.65M
Park Slope has a tranquil, easygoing vibe and can almost feel suburban. Strollers and children of all ages are a constant presence on sidewalks, as are shoppers patronizing local boutiques and dog walkers heading up to the park. Residents are Brooklynites through and through and tend to be socially conscious, artistically minded, and committed to their community. At night, a casual restaurant scene comes alive. For anyone looking for a night out, there are plenty of beer gardens and wine bars to patronize, especially in the South Slope, but don't go looking for dance clubs.
Learn more about Park Slope























































































































































