$4,000
For Rent
Base rent only. For total monthly price and additional fees, see .
Rented 8/28/2024
- ft²
5 rooms
2 beds
1 bath
Rental unit
- Cobble Hill
Under NYC law, you can't be charged a broker fee if you didn't hire a broker.
Listed By
This home has been saved by 65 users.
Listing by Brooklyn Landmark Real Estate, Tradename Broker, 111 Montague Street, Brooklyn, NY 11201
Unavailable
Rented on 8/28/2024
Days on market
15 days
Last price change
↓ $300 (-7.0%) on 8/22/24
About
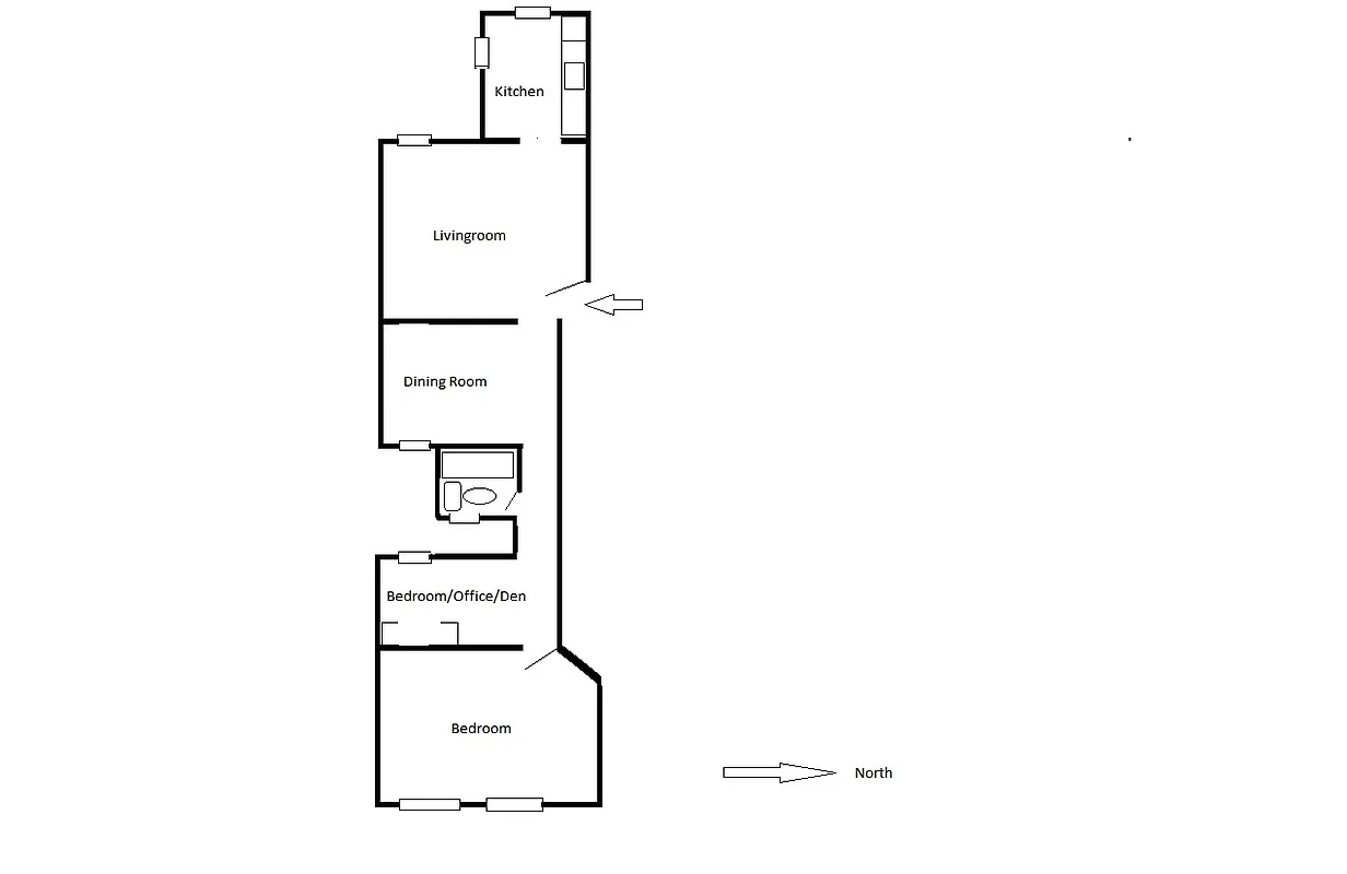
Brick building, great renovated apartment in a great location!!!
This is very nicely renovated top floor 5-rooms apartment. This is “floor-thru/ railroad" style apartment with new eat-in-kitchen with new appliances, living room, dining room, king size bedroom + 2nd attached bedroom/den or home office and renovated/new white designed tiles bathroom and good closets space.
Policies
Sorry, policy info isn’t available right now. Check back later.
Home features
Hardwood floors
View
Garden
Building amenities
No info on building amenities
About the building
200 Court Street
200 Court Street, Brooklyn, NY 11201
8 units
4 stories
1900 built
Property history
Prices shown are base rent only. For total monthly price and additional fees, see .
| Date | Base rent | Event |
|---|---|---|
8/30/2024 | $4,000 | Rented by Brooklyn Landmark Real Estate |
8/28/2024 | $4,000 | Temporarily off market |
8/22/2024 | $4,000 | Price decreased by 7% |
8/15/2024 | $4,300 | Price decreased by 4% |
8/13/2024 | $4,500 | Listed by Brooklyn Landmark Real Estate |
Past listing photos
Sign in to take a closer look at how this home compares to similar homes.
Explore Cobble Hill
Transit
| Location | Distance |
|---|---|
FGat Bergen St | 0.17 miles |
R2345at Borough Hall/Court St | 0.4 miles |
FGat Carroll St | 0.42 miles |
ACGat Hoyt & Schermerhorn | 0.45 miles |
ACFRat Jay St–MetroTech | 0.5 miles |
About Cobble Hill
Rental prices shown are base rent before any fees. Visit listings for cost and fees breakdown.
SalesMedian asking price
2 beds
$1.9M
RentalsMedian asking base rent
2 beds
$5,500
Cobble Hill is a beautiful, historic neighborhood with some of the borough's most expensive real estate. Despite the abundance of seven-figure homes, Cobble Hill has small-town vibe evident in the mom-and-pop stores and Italian influences that dot Court Street. Walk down the sunny commercial strip and you'll pass the local butcher, the baker and the fishmonger — all family-run and equally popular among local residents and foodies from far and wide.
On the side streets, the homes tend to be large brick townhouses and brownstones owned by single families, with well-kept facades and window boxes. This is a neighborhood where homeownership is a luxury, and residents take that responsibility to heart. The blocks are clean, the community associations active, and the lifestyle warm and genteel.
Similar homes
Prices shown are base rent only and don't include any fees. Visit each listing to see a complete cost breakdown.
Similar Homes looks at ad spend and other factors like location, price, and number of beds and baths.
























































































