- ft²
6 rooms
3 beds
3 baths
Co-op
- Upper West Side
Resale
recorded sale
Sold on 8/3/2022
Verified by closing records
Last listed for $2,795,000
Seller's agent
This home has been saved by 38 users.
Listing by Brown Harris Stevens, Real Estate Principal Office, 1934 Broadway, New York, NY 10023
Maintenance fees
$3,605/mo
Estimated payment
$17,207/mo
Legal disclaimerAll calculations are estimates provided by StreetEasy for informational purposes only. Actual amounts or financing terms may vary. Please contact your mortgage provider for specifics.Taxes
Included in maintenance fees
Tax abatement
No info
About
Seller’s agent
Buyer’s agent
description
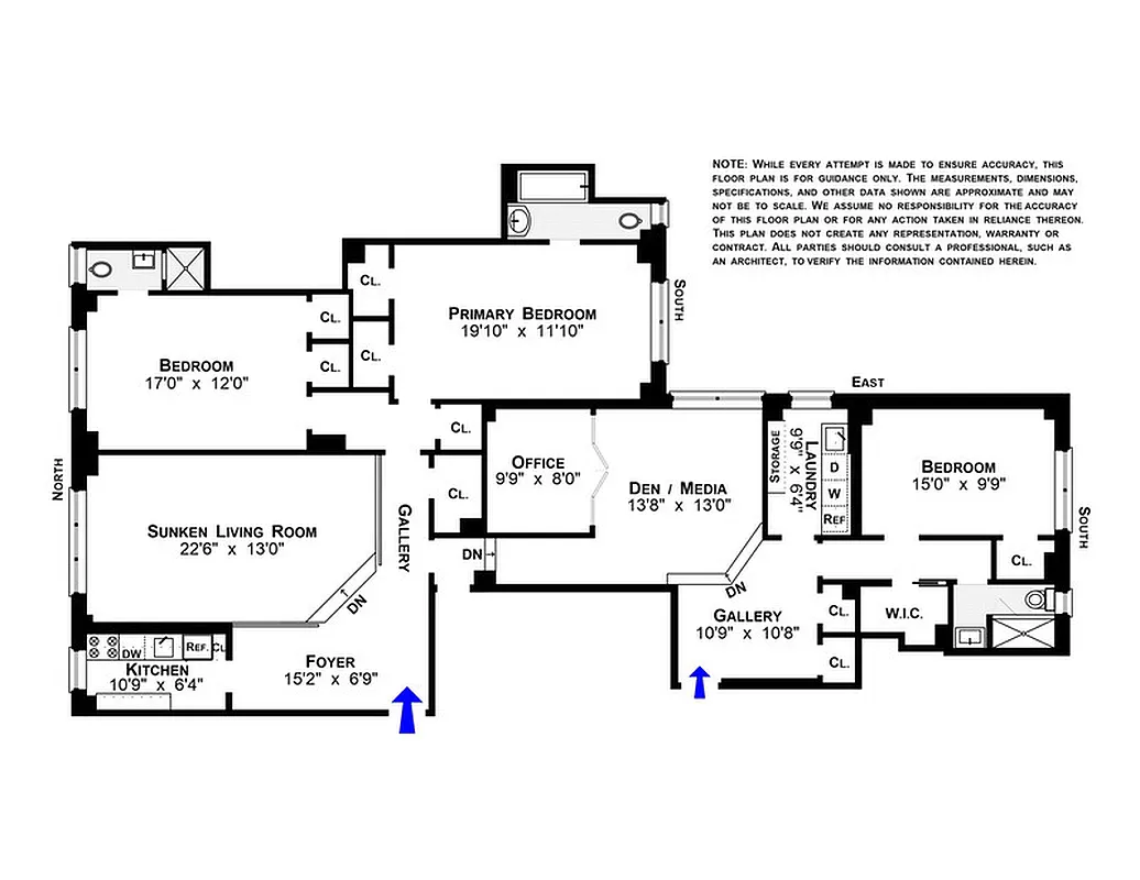
Room to Roam
Warm and inviting this renovated 3 bed 3 bath home with a den and home office is waiting for a new owner. Off the entry foyer is a renovated windowed kitchen replete with Sub Zero refrigerator, Wolf gas range, Miele dishwasher, glass tiled back splash and custom cabinetry. Step down to a gracious north facing living room perfect for entertaining or retire to one of two primary sized bedroom each with their own ensuite renovated windowed bath.
Policies
Pets allowed
Cats and dogs allowed
Home features
View
City
Washer/dryer
Building amenities
Services and facilities
Bike room
Concierge
Doorman
Full-time
Elevator
Laundry in building
Live-in super
Wellness and recreation
Children's playroom
Gym
Shared outdoor space
Roof deck
About the building
200 West 86th Street
200 West 86th Street, New York, NY 10024
224 units
19 stories
1931 built
For sale
1 available units for saleFor rent
0 available units for rentDocuments and permits
View documents and permitsProperty history
- Price Change: No changes
- Days on market: 37 daysThis is the number of days the listing has been on StreetEasy.
| Date | Price | Event |
|---|---|---|
8/3/2022 | $2,650,000 | Sold by Brown Harris Stevens |
5/11/2022 | $2,795,000 | In contract |
4/4/2022 | $2,795,000 | Listed by Brown Harris Stevens |
Past listing photos
Sign in to take a closer look at how this home compares to similar homes.
Explore Upper West Side
Transit
| Location | Distance |
|---|---|
1at 86th St | under 500 feet |
1at 79th St | 0.33 miles |
BCat 86th St | 0.36 miles |
123at 96th St | 0.39 miles |
BCat 81st St–Museum of Natural History | 0.43 miles |
About Upper West Side
Rental prices shown are base rent before any fees. Visit listings for cost and fees breakdown.
SalesMedian asking price
3 beds
$3M
RentalsMedian asking base rent
3 beds
$8,973
Sandwiched between two beautiful parks, the Upper West Side is one of the greenest spots in Manhattan. For that reason, it is a perennial favorite. The Upper West Side is relaxed, but never dull. There are plenty of low-key bars and restaurants to frequent along Amsterdam Avenue, and Broadway is an always-bustling commercial center. The wide, tree-lined streets still boast many mom-and-pop stores. Less posh than the Upper East Side, it is more easily accessible by public transportation, and real estate prices are just as, if not more, expensive.
Learn more about Upper West Side





































































































































































































