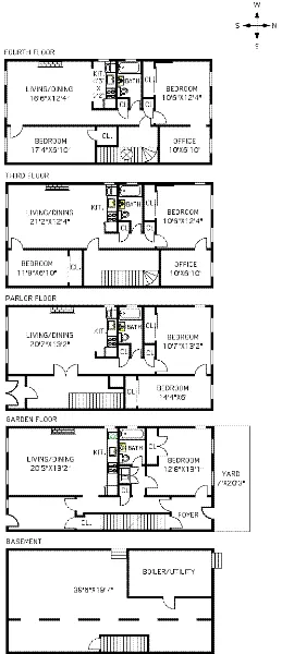
3,812 ft²
$733 per ft²
12 rooms
7 beds
4 baths
Four-family home
- Boerum Hill
reported sale
Sold on 1/25/2013
Not yet verified by closing records
Seller's agents
This home has been saved by 6 users.
Listing by Corcoran, Limited Liability Broker, 1 Pierrepont Plz, Brooklyn, NY 11201 | Brokerage Listing ID: 2452042
Common charges
Not applicable
Estimated payment
$14,397/mo
Legal disclaimerAll calculations are estimates provided by StreetEasy for informational purposes only. Actual amounts or financing terms may vary. Please contact your mortgage provider for specifics.Taxes
$630/mo
Tax abatement
No info
About
Seller’s agent
description
A beautifully renovated and maintained 4 family home that is large, over 3800 square feet, deep, 45 feet on all 4 floors, wide, over 21 feet on all 4 floors, and 3 exposures. On one of Boerum Hill's most sought after blocks this property of four floor-through 2 bedroom apartments offers you options: - Live in one of the two bedroom apartments and collect fabulous income from the other three units.
Policies
Sorry, policy info isn’t available right now. Check back later.
Home features
No info on home features
Building amenities
No info on building amenities
About the building
201 Dean Street
201 Dean Street, Brooklyn, NY 11217
4 units
3 stories
1915 built
For sale
0 available units for saleFor rent
0 available units for rentDocuments and permits
View documents and permitsProperty history
- Price Change: ↓ $155,000 (-5.3%) on 10/12/12
- Days on market: 73 daysThis is the number of days the listing has been on StreetEasy.
| Date | Price | Event |
|---|---|---|
1/23/2013 | $2,639,000 | |
3/19/2015 | $2,795,000 | Sold by Corcoran |
1/25/2013 | $2,795,000 | No longer available |
11/13/2012 | $2,795,000 | In contract |
10/12/2012 | $2,795,000 | Price decreased by 5% |
Past listing photos
Sign in to take a closer look at how this home compares to similar homes.
Explore Boerum Hill
Transit
| Location | Distance |
|---|---|
ACGat Hoyt & Schermerhorn | 0.19 miles |
FGat Bergen St | 0.26 miles |
23at Hoyt St | 0.3 miles |
2345at Nevins St | 0.31 miles |
BQRat DeKalb Av | 0.35 miles |
About Boerum Hill
Rental prices shown are base rent before any fees. Visit listings for cost and fees breakdown.
SalesMedian asking price
7 beds
$3.7M
Energetic and inviting, Boerum Hill continues its run as one of New York City's most desirable neighborhoods, all while remaining a secret quietly shared amongst its happy residents. Its appeal and vibrancy stem from its housing stock. Handsome Greek revival and Italianate townhouses line the wide, tree-lined streets. These beautiful brick and limestone buildings have long been a mecca for Brooklynites seeking an enclave close to Downtown Brooklyn and lower Manhattan — but far from crowds and highrises.
Main drags like Bergen Street, Atlantic Avenue, and Smith Street are peppered with charming boutiques like Collier West in addition to welcoming cafes, bars, and restaurants, including Rucola, French Louie, and Bacchus, to name a few. Fans of new construction will find new condo developments too. Saint Marks Place, The Hendrick, The Boerum, and The Bergen have expanded buyers' opportunities. Renters will also find plenty of options here in a broad range of prices, from the genuinely affordable to the luxurious.



















































































































































































