$3,000
For Rent
Base rent only. For total monthly price and additional fees, see .
No longer available 6/19/2025
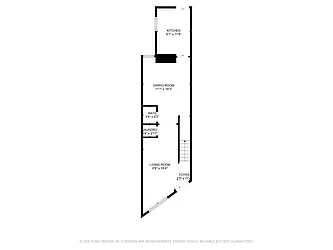
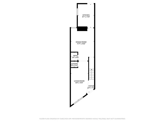
1,300 ft²
$27 per ft²
2 rooms
3 beds
1.5 baths
House
- Bergen/Lafayette
Listed By
Jeremy Morrieson
Keller Williams City Life JC Realty
This home has been saved by 4 users.
Listing by Keller Williams City Life JC Realty | MLS #: 250007926
Searching with a housing voucher, like Section 8?
Unavailable
No longer available on 6/19/2025
Days on market
57 days
Last price change
No changes
About
Welcome to 204 Summit Ave in Jersey City. This beautiful 3 bedroom and 1.5 bathroom apartment boasts hardwood floors throughout, an updated kitchen with all modern appliances, and the convenience of an in-unit washer and dryer. Enjoy plenty of space with this duplex. Conveniently located just steps from public transportation and shops, this apartment offers the perfect blend of city living and peaceful escape.
Policies
Sorry, policy info isn’t available right now. Check back later.
Home features
Central air
Dishwasher
Washer/dryer
Building amenities
No info on building amenities
About the building
204 Summit Avenue
204 Summit Avenue, Jersey City, NJ 07304
- units
- stories
- built
For rent
0 available units for rentProperty history
Prices shown are base rent only. For total monthly price and additional fees, see .
| Date | Base rent | Event |
|---|---|---|
6/19/2025 | $3,000 | No longer available |
4/23/2025 | $3,000 | Listed by Keller Williams City Life JC Realty |
Sign in to take a closer look at how this home compares to similar homes.
Explore Bergen/Lafayette
Transit
| Location | Distance |
|---|---|
PATHat Journal Square Station | 0.69 miles |
HBLRat Jersey Ave. | 1.03 miles |
PATHat Grove Street Station | 1.21 miles |
HBLRat West Side Ave. | 1.27 miles |
HBLRat Marin Blvd. | 1.29 miles |
Similar homes
Prices shown are base rent only and don't include any fees. Visit each listing to see a complete cost breakdown.
Similar Homes looks at ad spend and other factors like location, price, and number of beds and baths.




































































































