- ft²
2 rooms
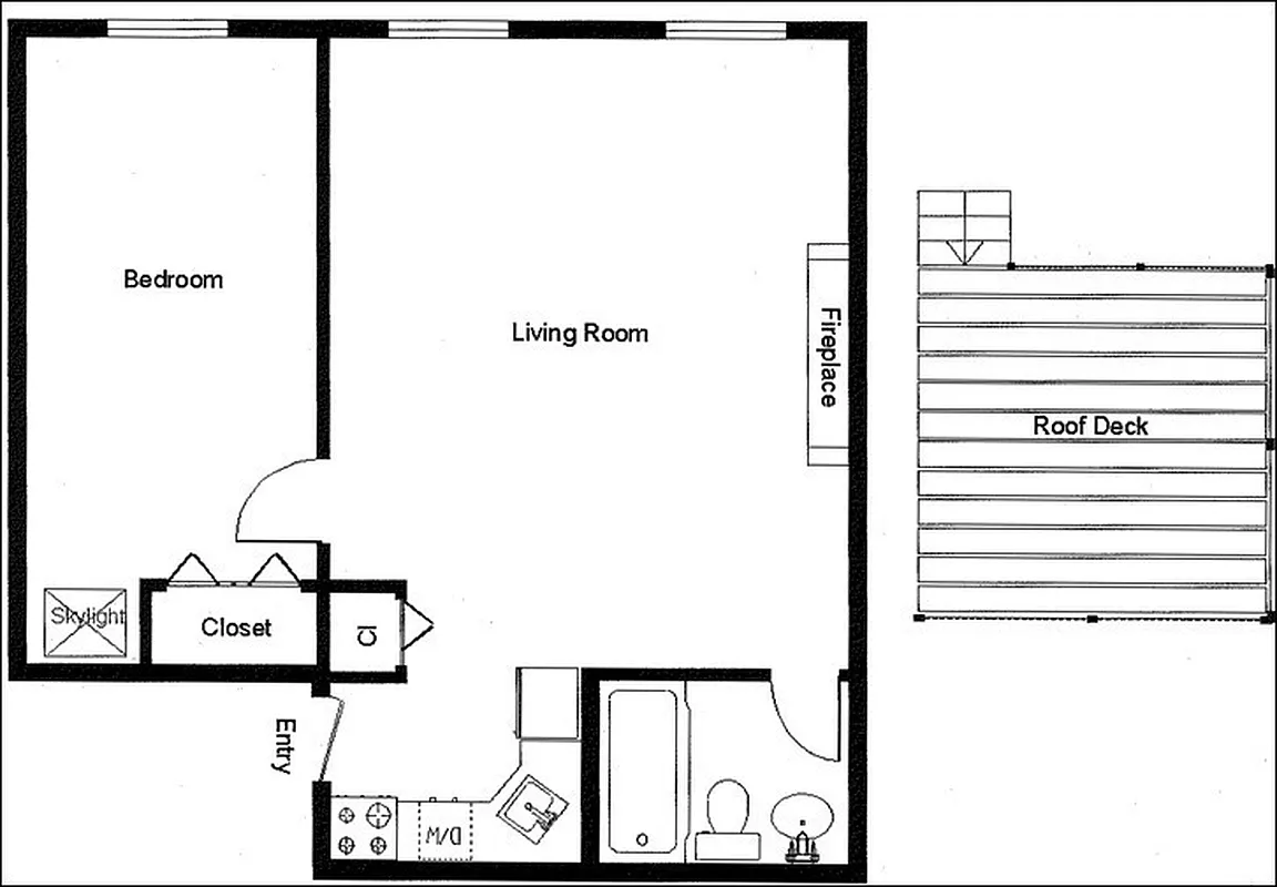
1 bed
1 bath
Co-op
- Fort Greene
Resale
reported sale
Sold on 6/13/2022
Not yet verified by closing records
Seller's agents
This home has been saved by 123 users.
Listing by Corcoran, Limited Liability Broker, 1 Pierrepont Plz, Brooklyn, NY 11201
Maintenance fees
$542/mo
Estimated payment
$4,606/mo
Legal disclaimerAll calculations are estimates provided by StreetEasy for informational purposes only. Actual amounts or financing terms may vary. Please contact your mortgage provider for specifics.Taxes
Included in maintenance fees
Tax abatement
No info
About
Sellerâs agent
description
In the heart of Fort Greene, a half block from Fort Greene Park and nestled on one of Brooklyns most coveted and gorgeous streets, you will fall in love with this one-bedroom, one-bath coop with private roof deck located in a grand 25-foot wide brownstone. Designer details abound in this stunning apartment. The living room is anchored by a beautiful mantel and wood burning fireplace.
Policies
Pets allowed
Cats and dogs allowed
Home features
Dishwasher
Fireplace
Wood
Hardwood floors
Private outdoor space
Roof deck
View
Park
Building amenities
No info on building amenities
About the building
21 South Portland Avenue
21 South Portland Avenue, Brooklyn, NY 11217
9 units
4 stories
1930 built
For sale
0 available units for saleFor rent
0 available units for rentDocuments and permits
View documents and permitsProperty history
- Price Change: No changes
- Days on market: 14 daysThis is the number of days the listing has been on StreetEasy.
| Date | Price | Event |
|---|---|---|
6/13/2022 | $825,000 | Sold by Corcoran |
3/10/2022 | $825,000 | In contract |
2/24/2022 | $825,000 | Listed by Corcoran |
8/25/2011 | $455,000 | |
6/27/2011 | $465,000 |
Past listing photos
Sign in to take a closer look at how this home compares to similar homes.
Explore Fort Greene
Transit
| Location | Distance |
|---|---|
Gat Fulton St | 0.15 miles |
Cat Lafayette Av | 0.17 miles |
2345at Nevins St | 0.3 miles |
BDNQR2345at Atlantic AvâBarclays Ctr | 0.31 miles |
BQRat DeKalb Av | 0.34 miles |
About Fort Greene
Rental prices shown are base rent before any fees. Visit listings for cost and fees breakdown.
SalesMedian asking price
1 bed
$907K
RentalsMedian asking base rent
1 bed
$4,300
With bustling flea markets, a world-renowned performance space, trendy boutiques, fabulous restaurants, and a rich literary and artistic tradition, Fort Greene attracts residents looking for a slower pace of living without sacrificing the vibrancy of urban life. Historic brownstones and row houses make up most of the available real estate, and it's common to find neighbors catching up on their stoops. Intense Brooklyn pride is in evidence on the main drag of Fulton Street, where a Notorious B.I.G. quote is painted on the side of a prominent building - "Spread love it's the Brooklyn way."
Learn more about Fort Greene







































































































