- ft²
3 rooms
1 bed
1.5 baths
Condop
- Upper West Side
Resale
recorded sale
Sold on 7/6/2023
Verified by closing records
Last listed for $1,050,000
Seller's agent
This home has been saved by 51 users.
Listing by Compass, Corporate Broker, 2150 Broadway, New York, NY 10023
Maintenance fees
$1,773/mo
Estimated payment
Taxes
Included in maintenance fees
Tax abatement
No info
About
Seller’s agent
Buyer’s agent
description
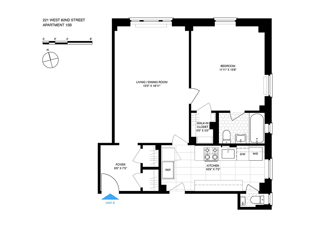
Apartment 15B is a spacious one bedroom apartment filled with light and the classic touches of this Emory Roth building. The separate entryway leads into an oversized living room with parquet floors. Off of the living room is the sun filled bedroom that has open bright views to the north and east. There is ample closet space including a walk in closet and an en suite bathroom.
Policies
Pets allowed
Cats and dogs allowed
Home features
Dishwasher
Hardwood floors
Washer/dryer
Building amenities
Services and facilities
Bike room
Doorman
Full-time
Elevator
Live-in super
Wellness and recreation
No info on wellness and recreation
Shared outdoor space
Roof deck
About the building
221 West 82nd Street
221 West 82nd Street, New York, NY 10024
98 units
17 stories
1923 built
For sale
2 available units for saleFor rent
0 available units for rentDocuments and permits
View documents and permitsProperty history
- Price Change: No changes
- Days on market: 46 daysThis is the number of days the listing has been on StreetEasy.
| Date | Price | Event |
|---|---|---|
7/6/2023 | $965,000 | Sold by Compass |
3/28/2023 | $1,050,000 | In contract |
2/10/2023 | $1,050,000 | Listed by Compass |
12/22/2021 | $950,000 |
Past listing photos
Sign in to take a closer look at how this home compares to similar homes.
Explore Upper West Side
Transit
| Location | Distance |
|---|---|
1at 79th St | 0.16 miles |
1at 86th St | 0.18 miles |
BCat 81st St–Museum of Natural History | 0.4 miles |
BCat 86th St | 0.43 miles |
123at 72nd St | 0.5 miles |
About Upper West Side
Rental prices shown are base rent before any fees. Visit listings for cost and fees breakdown.
SalesMedian asking price
1 bed
$795K
RentalsMedian asking base rent
1 bed
$4,500
Sandwiched between two beautiful parks, the Upper West Side is one of the greenest spots in Manhattan. For that reason, it is a perennial favorite. The Upper West Side is relaxed, but never dull. There are plenty of low-key bars and restaurants to frequent along Amsterdam Avenue, and Broadway is an always-bustling commercial center. The wide, tree-lined streets still boast many mom-and-pop stores. Less posh than the Upper East Side, it is more easily accessible by public transportation, and real estate prices are just as, if not more, expensive.
Learn more about Upper West Side

























































































































