View this home virtually
$999,000
For Sale
- ft²
4 rooms
2 beds
1 bath
Co-op
- Chelsea
Resale
This home has been saved by 140 users.
Listing by Compass, Corporate Broker, 110 5th Avenue, New York, NY 10011
Maintenance fees
$1,531/mo
Estimated payment
$6,682/mo
Legal disclaimerAll calculations are estimates provided by StreetEasy for informational purposes only. Actual amounts or financing terms may vary. Please contact your mortgage provider for specifics.Taxes
Included in maintenance fees
Tax abatement
No info
About
Seller’s agent
description
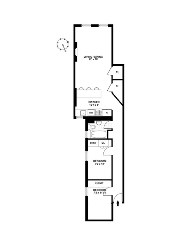
Top floor two bedroom available for sale in Prime Chelsea!
Situated on the top floor of a lovely pre-war coop with elevator, this home features lovely pre-war features like high ceilings, exposed brick walls, decorative fireplace, hardwood floors, and period moldings.
The living room faces South overlooking tree-lined W 21st Street and gets great southern light from oversized windows.
Policies
Pets allowed
Cats only (no dogs)
Home features
Dishwasher
Fireplace
Hardwood floors
View
City
Building amenities
Services and facilities
Bike room
Elevator
Live-in super
Wellness and recreation
No info on wellness and recreation
Shared outdoor space
No info on shared outdoor space
About the building
223 West 21st Street
223 West 21st Street, New York, NY 10011
63 units
5 stories
1899 built
For sale
2 available units for saleFor rent
0 available units for rentDocuments and permits
View documents and permitsProperty history
- Price Change: No changes
- Days on market: 103 daysThis is the number of days the listing has been on StreetEasy.
| Date | Price | Event |
|---|---|---|
9/13/2025 | $999,000 | Listed by Compass |
Sign in to take a closer look at how this home compares to similar homes.
Explore Chelsea
Transit
| Location | Distance |
|---|---|
1at 23rd St | 0.1 miles |
CEat 23rd St | 0.11 miles |
1at 18th St | 0.16 miles |
FMat 23rd St | 0.24 miles |
ACELat 14th St | 0.25 miles |
About Chelsea
Rental prices shown are base rent before any fees. Visit listings for cost and fees breakdown.
SalesMedian asking price
2 beds
$2.3M
RentalsMedian asking base rent
2 beds
$7,997
If you're looking for a staid, quiet place to live, Chelsea is not for you. Its thriving arts scene has always been a big draw for creative types. Not surprisingly, residents pay a high price to live in such a hip and happening part of Manhattan. The neighborhood has some of the most exclusive restaurants and bars in the city, and real estate prices are steep — especially for new condos along the High Line.
Slip down many of the side streets, however, and you're likely to find some beautiful and historic townhouses nestled gracefully within the neighborhood's hustle and bustle.
















































































































































































































