2,043 ft²
$1,160 per ft²
7 rooms
4 beds
2.5 baths
Condo
- Crown Heights
Resale
recorded sale
Sold on 8/2/2021
Verified by closing records
Last listed for $2,295,000
Seller's agents
This home has been saved by 64 users.
Listing by Compass, Corporate Broker, 514 2nd Street, Brooklyn, NY 11215
Common charges
$1,495/mo
Estimated payment
$13,866/mo
Legal disclaimerAll calculations are estimates provided by StreetEasy for informational purposes only. Actual amounts or financing terms may vary. Please contact your mortgage provider for specifics.Taxes
$766/mo
Tax abatement
No info
About
Seller’s agent
description
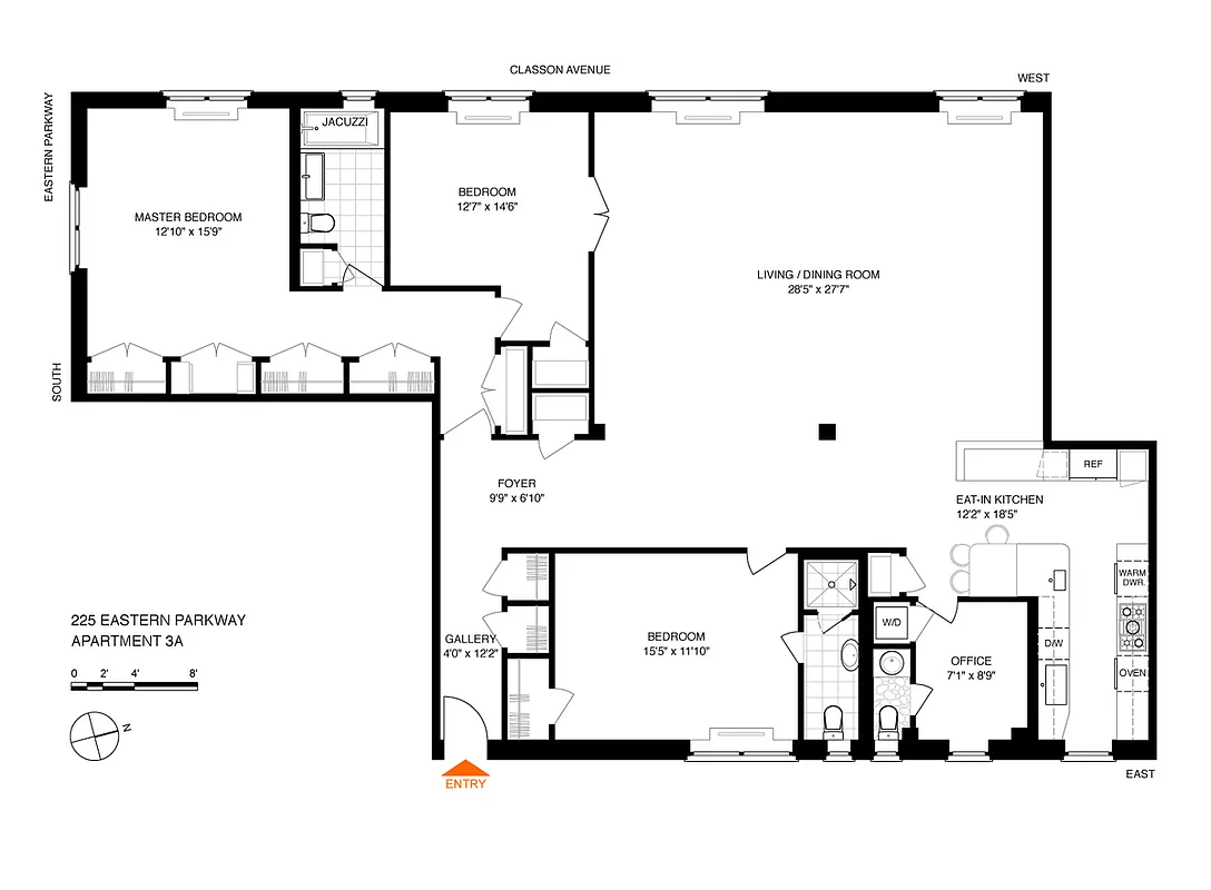
Sprawling, loft-like, and gracious! This meticulously renovated 2,043 square foot four-bedroom, two-and-a half-bathroom condominium is in immaculate condition and features luxurious finishes, an open layout, three exposures, and 11 windows allowing for a bright, open and airy feel.
Upon entering, the welcoming gallery foyer opens to a breathtaking living/dining area featuring high ceilings, a beautiful gas fireplace, and oversized windows that flood the room in natural light.
Policies
Pets allowed
Cats and dogs allowed
Home features
Fireplace
Hardwood floors
View
City, Park
Washer/dryer
Building amenities
Services and facilities
Bike room
Doorman
Part-time
Elevator
Laundry in building
Live-in super
Package room
Storage space
Locker/cage
Wellness and recreation
Gym
Shared outdoor space
Courtyard
About the building
225 Eastern Parkway
225 Eastern Parkway, Brooklyn, NY 11238
56 units
6 stories
1939 built
For sale
0 available units for saleFor rent
0 available units for rentDocuments and permits
View documents and permitsProperty history
- Price Change: ↓ $105,000 (-4.4%) on 10/13/20
- Days on market: 99 daysThis is the number of days the listing has been on StreetEasy.
| Date | Price | Event |
|---|---|---|
8/2/2021 | $2,370,000 | Sold by Compass |
12/17/2020 | $2,295,000 | No longer available |
10/13/2020 | $2,295,000 | Price decreased by 4% |
10/2/2020 | $2,400,000 | Listed by Compass |
9/30/2020 | $2,400,000 | Delisted by Compass |
Past listing photos
Sign in to take a closer look at how this home compares to similar homes.
Explore Crown Heights
Transit
| Location | Distance |
|---|---|
S2345at Botanic Gardens | 0.12 miles |
S2345at Franklin Av | 0.17 miles |
23at Eastern Parkway–Brooklyn Museum | 0.18 miles |
Sat Park Place | 0.24 miles |
3at Nostrand Av | 0.54 miles |
About Crown Heights
Rental prices shown are base rent before any fees. Visit listings for cost and fees breakdown.
SalesMedian asking price
4 beds
$2M
RentalsMedian asking base rent
4 beds
$4,495
Crown Heights has a lot going on. From the chaotic, commercial avenues of Nostrand and Utica to the wide, tree-lined esplanades of Eastern Parkway, the streets are always filled with locals shopping, catching up on the corner, and keeping tabs on neighbors. Walk down any of these streets and you're likely to find music playing from idling cars and bright Caribbean flags hanging from windows of apartment buildings. Every Labor Day, Crown Heights hosts the West Indian Day Parade, one of the city's largest annual street festivals which draws thousands of people from around the city and the world. The mix of people in such close proximity makes Crown Heights a fascinating microcosm of New York City. Living here, you'll be surrounded by a community with deep roots and rich heritage.
Learn more about Crown Heights





























































































































