$1,849,000
For Sale
No longer available 11/17/2025
1,500 ft²
$1,232 per ft²
6 rooms
3 beds
1+ baths
House
- Greenwood
Resale
Seller's agent
Licensed Real Estate Broker
Tyler Vincent Real Estate Inc
This home has been saved by 35 users.
Listing by Tyler Vincent Real Estate Inc, Corporate Broker, 230 26th Street, Brooklyn, NY 11232
Common charges
Not applicable
Estimated payment
$9,760/mo
Legal disclaimerAll calculations are estimates provided by StreetEasy for informational purposes only. Actual amounts or financing terms may vary. Please contact your mortgage provider for specifics.Taxes
$350/mo
Tax abatement
No info
About
Seller’s agent
description
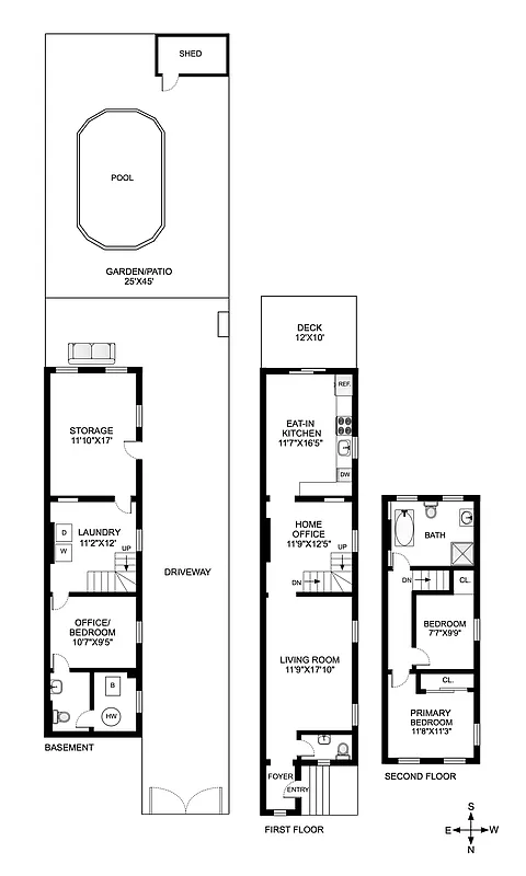
Thinking of moving to Brooklyn? Looking for just the right amount of space? What about parking? A backyard? 230 26th Street - has just the right amount of space, renovated and ready for you to move right in! This single family home is a rare find in Brooklyn! Especially in District 15 schools, with a driveway that we used as a great outdoor party spot - the backyard has a pool and the kitchen has its own deck.
Policies
Sorry, policy info isn’t available right now. Check back later.
Home features
Central air
Dishwasher
Hardwood floors
Private outdoor space
Garden, Terrace
Washer/dryer
Building amenities
Services and facilities
Laundry in building
Wellness and recreation
No info on wellness and recreation
Shared outdoor space
No info on shared outdoor space
About the building
230 26th Street
230 26th Street, Brooklyn, NY 11232
1 unit
2 stories
1910 built
For sale
0 available units for saleFor rent
0 available units for rentDocuments and permits
View documents and permitsProperty history
- Price Change: ↓ $50,000 (-2.6%) on 8/12/25
- Days on market: 235 daysThis is the number of days the listing has been on StreetEasy.
| Date | Price | Event |
|---|---|---|
2/16/2026 | $1,849,000 | No longer available |
11/17/2025 | $1,849,000 | Temporarily off market |
8/12/2025 | $1,849,000 | Price decreased by 3% |
6/29/2025 | $1,899,000 | Price decreased by 12% |
6/4/2025 | $2,149,000 | Price decreased by 7% |
Sign in to take a closer look at how this home compares to similar homes.
Explore Greenwood
Transit
| Location | Distance |
|---|---|
Rat 25th St | under 500 feet |
NRat 36th St | 0.46 miles |
Rat Prospect Av | 0.48 miles |
Fat 4th Av | 0.87 miles |
Dat 9th Av | 0.88 miles |





































































































































































