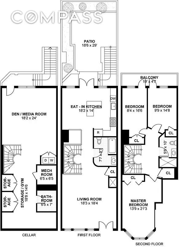
2,695 ft²
$742 per ft²
5 rooms
3 beds
3 baths
Two-family home
- Gowanus
reported sale
Sold on 8/12/2016
Not yet verified by closing records
Seller's agents
This home has been saved by 50 users.
Listing by Compass, Corporate Broker, 514 2nd Street, Brooklyn, NY 11215 | Brokerage Listing ID: ec8228d75aa7b3c993df18557f686f2270a64ce7
Common charges
Not applicable
Estimated payment
$10,789/mo
Legal disclaimerAll calculations are estimates provided by StreetEasy for informational purposes only. Actual amounts or financing terms may vary. Please contact your mortgage provider for specifics.Taxes
$134/mo
Tax abatement
No info
About
Seller’s agent
description
Apartment 230 C, Unit A is a sprawling 2700 square foot triplex with its own private garden, offering the perfect alternative to townhouse living. (Note - this is not 230A Apt A, which sold in July of 2015.)
The apartment is set back from the street with a landscaped front garden. The mudroom entrance offers a well organized space with plenty of storage and a perfect place to hang your coat and park your belongings.
Policies
Sorry, policy info isn’t available right now. Check back later.
Home features
Dishwasher
Private outdoor space
Balcony, Garden, Patio
Washer/dryer
Building amenities
Services and facilities
Storage space
Wellness and recreation
Gym
Hot tub
Shared outdoor space
Deck
About the building
230 7th Street
230 7th Street, Brooklyn, NY 11215
2 units
3 stories
1901 built
For sale
0 available units for saleFor rent
0 available units for rentDocuments and permits
View documents and permitsProperty history
- Price Change: ↑ $5,000 (+0.2%) on 8/12/16
- Days on market: 78 daysThis is the number of days the listing has been on StreetEasy.
| Date | Price | Event |
|---|---|---|
8/12/2016 | $2,000,000 | Price increased by 0% |
8/12/2016 | $2,000,000 | Sold by Compass |
4/14/2016 | $1,995,000 | In contract |
1/27/2016 | $1,995,000 | Listed by Compass |
Past listing photos
Sign in to take a closer look at how this home compares to similar homes.
Explore Gowanus
Transit
| Location | Distance |
|---|---|
FGRat 9th St | under 500 feet |
Fat 4th Av | 0.14 miles |
Rat Union St | 0.47 miles |
FGRat Smith–9th St | 0.48 miles |
Rat Prospect Av | 0.5 miles |
































































































































































