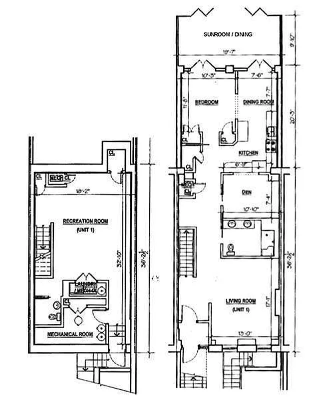
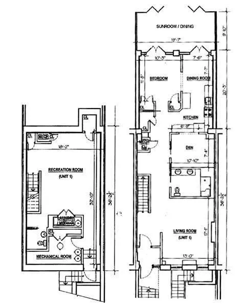
1,980 ft²
$477 per ft²
6 rooms
1 bed
1.5 baths
Condo
- Boerum Hill
recorded sale
Sold on 3/10/2009
Verified by closing records
Last listed for $995,000
Something went wrong
This contact form won't load. Please try again.
This home has been saved by 2 users.
Listing by Brown Harris Stevens, Real Estate Principal Office | MLS #: 151983
Common charges
$569/mo
Estimated payment
$5,800/mo
Legal disclaimerAll calculations are estimates provided by StreetEasy for informational purposes only. Actual amounts or financing terms may vary. Please contact your mortgage provider for specifics.Taxes
$183/mo
Tax abatement
No info
About
Seller’s agent
description
Utmost care and unique inspiration were bestowed upon this new duplex condo. Located on a lovely block in Boerum Hill, this townhouse was reconstructed to its former elegance and enhanced by architectural and design elements. Not only discerning eyes would appreciate the added details, choice of unique materials, thoughtful planning and superior craftsmanship. The list would go on ....
Policies
Sorry, policy info isn’t available right now. Check back later.
Home features
Private outdoor space
Building amenities
No info on building amenities
About the building
231 Bergen Street
231 Bergen Street, Brooklyn, NY 11217
3 units
3 stories
- built
For sale
0 available units for saleFor rent
0 available units for rentDocuments and permits
View documents and permitsProperty history
- Price Change: ↓ $130,000 (-11.6%) on 1/28/09
- Days on market: 234 daysThis is the number of days the listing has been on StreetEasy.
| Date | Price | Event |
|---|---|---|
3/10/2009 | $945,000 | Sold by Brown Harris Stevens |
3/11/2009 | $995,000 | No longer available |
2/27/2009 | $995,000 | In contract |
1/28/2009 | $995,000 | Price decreased by 12% |
11/20/2008 | $1,125,000 | Price decreased by 6% |
Sign in to take a closer look at how this home compares to similar homes.
Explore Boerum Hill
Transit
| Location | Distance |
|---|---|
ACGat Hoyt & Schermerhorn | 0.26 miles |
BDNQR2345at Atlantic Av–Barclays Ctr | 0.29 miles |
2345at Nevins St | 0.31 miles |
FGat Bergen St | 0.34 miles |
23at Hoyt St | 0.38 miles |
About Boerum Hill
Rental prices shown are base rent before any fees. Visit listings for cost and fees breakdown.
SalesMedian asking price
1 bed
$1.13M
RentalsMedian asking base rent
1 bed
$4,262
Energetic and inviting, Boerum Hill continues its run as one of New York City's most desirable neighborhoods, all while remaining a secret quietly shared amongst its happy residents. Its appeal and vibrancy stem from its housing stock. Handsome Greek revival and Italianate townhouses line the wide, tree-lined streets. These beautiful brick and limestone buildings have long been a mecca for Brooklynites seeking an enclave close to Downtown Brooklyn and lower Manhattan — but far from crowds and highrises.
Main drags like Bergen Street, Atlantic Avenue, and Smith Street are peppered with charming boutiques like Collier West in addition to welcoming cafes, bars, and restaurants, including Rucola, French Louie, and Bacchus, to name a few. Fans of new construction will find new condo developments too. Saint Marks Place, The Hendrick, The Boerum, and The Bergen have expanded buyers' opportunities. Renters will also find plenty of options here in a broad range of prices, from the genuinely affordable to the luxurious.



































































































































