- ft²
2 rooms
Studio
0 baths
Three-family home
- Park Slope
reported sale
Sold on 5/2/2014
Not yet verified by closing records
Seller's agents
This home has been saved by 9 users.
Listing by Douglas Elliman, Limited Liability Broker, 936 Broadway, New York, NY 10010 | Brokerage Listing ID: 1616887
Common charges
Not applicable
Estimated payment
$22,795/mo
Legal disclaimerAll calculations are estimates provided by StreetEasy for informational purposes only. Actual amounts or financing terms may vary. Please contact your mortgage provider for specifics.Taxes
No info
Tax abatement
No info
About
Seller’s agent
description
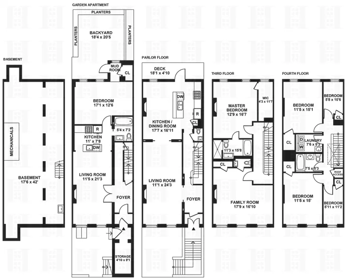
Lovingly restored Park Slope brownstone on one of the most beautiful blocks in Brooklyn. No detail has been overlooked in this magnificent, turn-key restoration.This home is a legal two family and is configured as a triplex over a one bedroom garden apartment that can easily convert to single family.The property features 6 bedrooms, family room, 3 full baths and 2 half baths, 4 wood burning fireplaces with restored mantels, and beveled mirrors.
Policies
Sorry, policy info isn’t available right now. Check back later.
Home features
Fireplace
Private outdoor space
Garden, Terrace
Building amenities
No info on building amenities
About the building
233 Garfield Place
233 Garfield Place, Brooklyn, NY 11215
3 units
3 stories
1901 built
For sale
1 available units for saleFor rent
0 available units for rentDocuments and permits
View documents and permitsProperty history
- Price Change: No changes
- Days on market: 55 daysThis is the number of days the listing has been on StreetEasy.
| Date | Price | Event |
|---|---|---|
12/3/2025 | $4,995,000 | |
10/23/2025 | $4,995,000 | |
5/1/2014 | $4,250,000 | |
3/5/2014 | $0 | |
5/3/2014 | $4,450,000 | Sold by Douglas Elliman |
Past listing photos
Sign in to take a closer look at how this home compares to similar homes.
Explore Park Slope
Transit
| Location | Distance |
|---|---|
23at Grand Army Plaza | 0.33 miles |
BQat 7th Av | 0.41 miles |
Fat 7th Av | 0.45 miles |
Rat Union St | 0.51 miles |
23at Bergen St | 0.6 miles |
About Park Slope
Rental prices shown are base rent before any fees. Visit listings for cost and fees breakdown.
SalesMedian asking price
Studio
$535K
RentalsMedian asking base rent
Studio
$3,166
Park Slope has a tranquil, easygoing vibe and can almost feel suburban. Strollers and children of all ages are a constant presence on sidewalks, as are shoppers patronizing local boutiques and dog walkers heading up to the park. Residents are Brooklynites through and through and tend to be socially conscious, artistically minded, and committed to their community. At night, a casual restaurant scene comes alive. For anyone looking for a night out, there are plenty of beer gardens and wine bars to patronize, especially in the South Slope, but don't go looking for dance clubs.
Learn more about Park Slope






















































































































































































