$6,035
For Rent
Base rent only. For total monthly price and additional fees, see .
$5,803 net effective base rent
0.5 months free
13-month lease
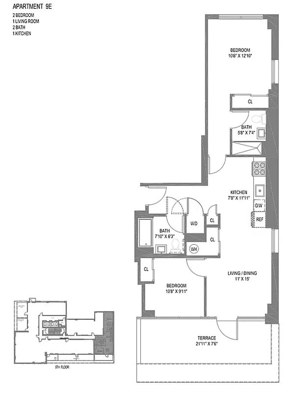
- ft²
5 rooms
2 beds
2 baths
Rental unit
- Gowanus
Under NYC law, you can't be charged a broker fee if you didn't hire a broker.
Listed By
Open House
Sat, Mar 14 (3â4 PM ET), by appt only
Listing by Living New York, Limited Liability Broker, 225 West 35th Street Ste, New York, NY 10001
Available
3/17/2026
Days on market
0 days
Last price change
No changes
About
Luxury 2-Bed, 2-Bath with a PRIVATE TERRACE in a Prime Brooklyn Location!
Experience sophisticated living at 237 11th Street, featuring elegantly designed residences by Aufgang Architects and the award-winning Meshberg Group.
Apartment Features:
Designer Kitchen â Custom cabinetry, Caesarstone counters, Blomberg & Summit appliances
Luxury Bathrooms â Ash vanities, Hansgrohe fixtures, deep soaking Duravit...
Policies
Pets allowed
Home features
Central air
Dishwasher
Hardwood floors
Private outdoor space
Balcony, Roof rights, Terrace
View
City, Skyline
Washer/dryer
Building amenities
Services and facilities
Bike room
Doorman
Virtual
Elevator
Package room
Parking
Garage
Storage space
Locker/cage
Wellness and recreation
Gym
Media room
Shared outdoor space
Courtyard
Roof deck
About the building
237 11th Street
237 11th Street, Brooklyn, NY 11215
105 units
12 stories
2017 built
Property history
Prices shown are base rent only. For total monthly price and additional fees, see .
| Date | Base rent | Event |
|---|---|---|
3/11/2026 | $6,035 | Listed by Living New York |
1/4/2025 | $5,792 | |
12/5/2024 | $5,792 |
Sign in to take a closer look at how this home compares to similar homes.
Explore Gowanus
Transit
| Location | Distance |
|---|---|
Fat 4th Av | under 500 feet |
FGRat 9th St | under 500 feet |
Rat Prospect Av | 0.33 miles |
Fat 7th Av | 0.46 miles |
FGRat Smithâ9th St | 0.54 miles |
Similar homes
Prices shown are base rent only and don't include any fees. Visit each listing to see a complete cost breakdown.
Similar Homes looks at ad spend and other factors like location, price, and number of beds and baths.


























































