View this home virtually
$8,400
For Rent
Base rent only. For total monthly price and additional fees, see .
Rented 5/17/2023
- ft²
7 rooms
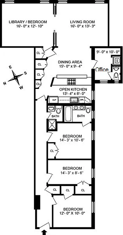
4 beds
2.5 baths
Condo
- Upper West Side
Under NYC law, you can't be charged a broker fee if you didn't hire a broker.
Listed By
This home has been saved by 63 users.
Listing by Rachel Realty, Corporate Broker, 255 West 88th Street, New York, NY 10024
Unavailable
Rented on 5/17/2023
Days on market
47 days
Last price change
No changes
About
Stunning, newly renovated 4-bedroom and 2.5 bathrooms apartment in a beautiful prewar building.
This rarely available classic 7 prewar condominium has been renovated to perfection and a delight to live in!
Filled with exquisite 19th C. details and 21st C. features, This wonderful home features beautiful prewar details with high ceilings, oak wainscotting and moldings, panel, pocket and french doors.
Policies
Pets allowed
Cats and dogs allowed
Home features
Dishwasher
Hardwood floors
View
City, Skyline
Washer/dryer
Building amenities
Services and facilities
Elevator
Live-in super
Storage space
Wellness and recreation
No info on wellness and recreation
Shared outdoor space
No info on shared outdoor space
About the building
243 West 98th Street
243 West 98th Street, New York, NY 10025
31 units
7 stories
1899 built
Property history
Prices shown are base rent only. For total monthly price and additional fees, see .
| Date | Base rent | Event |
|---|---|---|
5/17/2023 | $8,400 | Rented by Rachel Realty |
3/31/2023 | $8,400 | Listed by Rachel Realty |
4/14/2021 | $6,850 | |
2/27/2021 | $6,850 | Price decreased by 6% |
12/24/2020 | $7,250 |
Past listing photos
Sign in to take a closer look at how this home compares to similar homes.
Explore Upper West Side
Transit
| Location | Distance |
|---|---|
123at 96th St | 0.14 miles |
1at 103rd St | 0.24 miles |
BCat 96th St | 0.44 miles |
BCat 103rd St | 0.5 miles |
1at 86th St | 0.57 miles |
About Upper West Side
Rental prices shown are base rent before any fees. Visit listings for cost and fees breakdown.
SalesMedian asking price
4 beds
$5.65M
RentalsMedian asking base rent
4 beds
$19,500
Sandwiched between two beautiful parks, the Upper West Side is one of the greenest spots in Manhattan. For that reason, it is a perennial favorite. The Upper West Side is relaxed, but never dull. There are plenty of low-key bars and restaurants to frequent along Amsterdam Avenue, and Broadway is an always-bustling commercial center. The wide, tree-lined streets still boast many mom-and-pop stores. Less posh than the Upper East Side, it is more easily accessible by public transportation, and real estate prices are just as, if not more, expensive.
Learn more about Upper West SideSimilar homes
Prices shown are base rent only and don't include any fees. Visit each listing to see a complete cost breakdown.
Similar Homes looks at ad spend and other factors like location, price, and number of beds and baths.









































































































































