3,380 ft²
$1,094 per ft²
2 rooms
Studio
0 baths
House
- East Village
recorded sale
Sold on 2/29/2012
Verified by closing records
Last listed for $4,100,000
Seller's agent
This home has been saved by 18 users.
Listing by Brown Harris Stevens, Real Estate Principal Office, 445 Park Avenue, New York, NY 10022 | MLS #: 1220335
Common charges
Not applicable
Estimated payment
$29,849/mo
Legal disclaimerAll calculations are estimates provided by StreetEasy for informational purposes only. Actual amounts or financing terms may vary. Please contact your mortgage provider for specifics.Taxes
$8,575/mo
Tax abatement
No info
About
Seller’s agent
Buyer’s agent
description
CONTRACT SIGNED
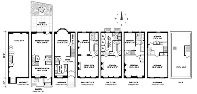
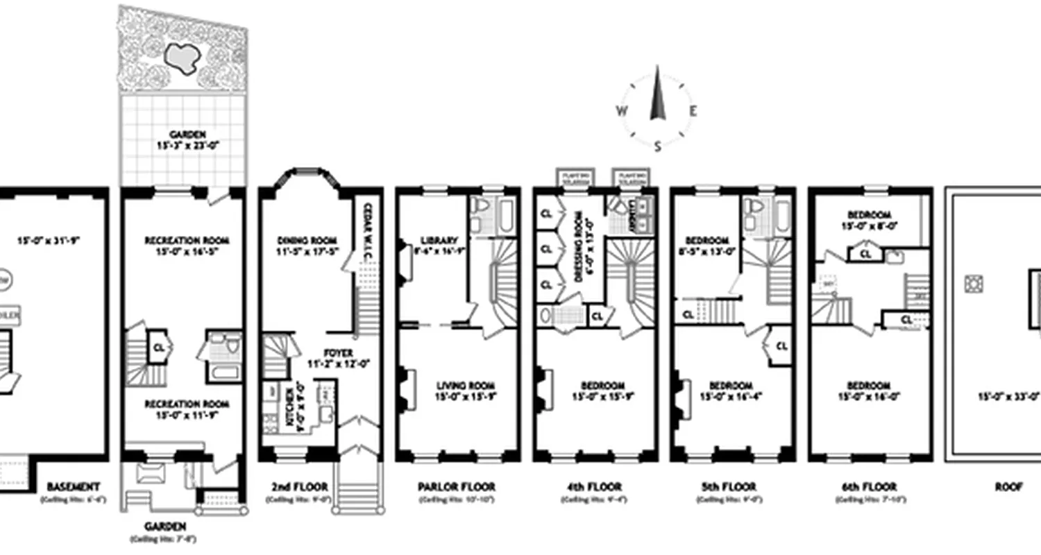
Stuyvesant Street Townhouse
STUYVESANT HISTORY & ARCHITECTURE
Petrus Stuyvesant laid out the street plan for the development of his property in 1787, naming several nearby streets after his children, Judith, Elizabeth, Margaret, and Cornelia. His son, Peter, would famously go on to found the New York Historical Society while his grandson, Hamilton Fish, born at 21 Stuyvesant Street, would later become Governor of New York and then Secretary of State for eight years.
Policies
Sorry, policy info isn’t available right now. Check back later.
Home features
Private outdoor space
Garden
Building amenities
Services and facilities
Storage space
Wellness and recreation
No info on wellness and recreation
Shared outdoor space
Roof deck
About the building
25 Stuyvesant Street
25 Stuyvesant Street, New York, NY 10003
1 unit
5 stories
1899 built
For sale
0 available units for saleFor rent
0 available units for rentDocuments and permits
View documents and permitsProperty history
- Price Change: ↓ $400,000 (-8.9%) on 8/15/11
- Days on market: 223 daysThis is the number of days the listing has been on StreetEasy.
| Date | Price | Event |
|---|---|---|
2/29/2012 | $3,700,000 | Sold by Brown Harris Stevens |
2/29/2012 | $4,100,000 | No longer available |
12/13/2011 | $4,100,000 | In contract |
8/15/2011 | $4,100,000 | Price decreased by 9% |
5/4/2011 | $4,500,000 | Listed by Brown Harris Stevens |
Past listing photos
Sign in to take a closer look at how this home compares to similar homes.
Explore East Village
Transit
| Location | Distance |
|---|---|
6at Astor Place | 0.13 miles |
RWat 8th St–NYU | 0.2 miles |
Lat 3rd Av | 0.22 miles |
LNQRW456at 14th St–Union Square | 0.29 miles |
Lat 1st Av | 0.31 miles |
About East Village
Rental prices shown are base rent before any fees. Visit listings for cost and fees breakdown.
SalesMedian asking price
Studio
$505K
RentalsMedian asking base rent
Studio
$3,000
Known and loved for being the birthplace of punk rock, the East Village is known for its vibrant restaurants and cocktail dens. During the day, however, the neighborhood slows down and has a tranquil feel. Meander down a leafy side street, and you'll happen upon plenty of prewar buildings and rusting fire escapes, which lend the East Village its old-fashioned charm.
Learn more about East Village













































































































































































