2,400 ft²
$1,152 per ft²
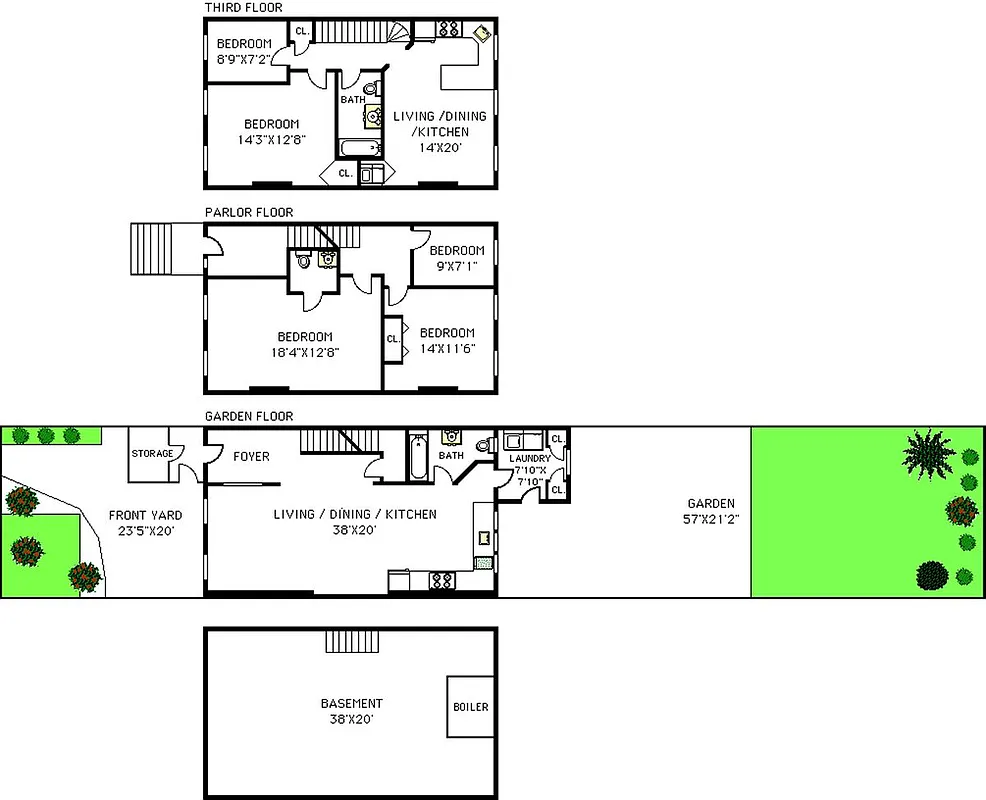
7 rooms
4 beds
3 baths
Two-family home
- Carroll Gardens
recorded sale
Sold on 8/30/2017
Verified by closing records
Last listed for $2,895,000
Seller's agent
Larisa Kogut
Licensed Associate Real Estate Broker
Corcoran
This home has been saved by 54 users.
Listing by Corcoran, Limited Liability Broker, 124 Montague Street, Brooklyn, NY 11201 | Brokerage Listing ID: 5116621
Common charges
Not applicable
Estimated payment
$15,037/mo
Legal disclaimerAll calculations are estimates provided by StreetEasy for informational purposes only. Actual amounts or financing terms may vary. Please contact your mortgage provider for specifics.Taxes
$398/mo
Tax abatement
No info
About
Seller’s agent
Buyer’s agent
description
This two family Townhouse beauty on the most desirable wide block in Carroll Gardens could be your next home. The Federal style 3 story, 2 unit, 20' wide brick and brownstone boasts a front and rear gorgeous Landscaped gardens. This home is featuring a wonderful sunny lower duplex with floor to ceiling windows, an open plan eat-in kitchen with a door into your South garden; a bright large Family room facing a front yard blooming with flowers; 2/3 bedrooms, 2 baths.
Policies
Sorry, policy info isn’t available right now. Check back later.
Home features
Private outdoor space
Garden
Building amenities
Services and facilities
Storage space
Wellness and recreation
No info on wellness and recreation
Shared outdoor space
No info on shared outdoor space
About the building
26 2nd Street
26 2nd Street, Brooklyn, NY 11231
2 units
2 stories
1901 built
For sale
0 available units for saleFor rent
0 available units for rentDocuments and permits
View documents and permitsProperty history
- Price Change: No changes
- Days on market: 57 daysThis is the number of days the listing has been on StreetEasy.
| Date | Price | Event |
|---|---|---|
8/30/2017 | $2,765,000 | Sold by Corcoran |
8/31/2017 | $2,895,000 | No longer available |
6/15/2017 | $2,895,000 | In contract |
4/19/2017 | $2,895,000 | Listed by Corcoran |
Past listing photos
Sign in to take a closer look at how this home compares to similar homes.
Explore Carroll Gardens
Transit
| Location | Distance |
|---|---|
FGat Carroll St | under 500 feet |
FGRat Smith–9th St | 0.32 miles |
FGat Bergen St | 0.49 miles |
Rat Union St | 0.6 miles |
FGRat 9th St | 0.65 miles |
About Carroll Gardens
Rental prices shown are base rent before any fees. Visit listings for cost and fees breakdown.
SalesMedian asking price
4 beds
$3.15M
RentalsMedian asking base rent
4 beds
$16,000
Carroll Gardens is at once the heart of old-school Brooklyn and a showcase for the borough's brownstone boom. The neighborhood has long been known for its red-sauce Italian joints and lively street life. But now, staples like Caputo's Bake Shop and Monteleone's Bakery and Café abut upscale stroller shops, yoga studios and fro-yo joints. Despite the newcomers, the neighborhood still feels like a small town, one of the few places where you might know your neighbors, your postman and your butcher by name.
Learn more about Carroll Gardens







































































































































