$2,695,000
For Sale
No longer available 12/19/2016
- ft²
10 rooms
5 beds
4.5 baths
Condo
- Bedford-Stuyvesant
This home has been saved by 33 users.
Listing by Corcoran, Limited Liability Broker | Brokerage Listing ID: 3798613
Common charges
No info
Estimated payment
$14,024/mo
Legal disclaimerAll calculations are estimates provided by StreetEasy for informational purposes only. Actual amounts or financing terms may vary. Please contact your mortgage provider for specifics.Taxes
$397/mo
Tax abatement
No info
About
description
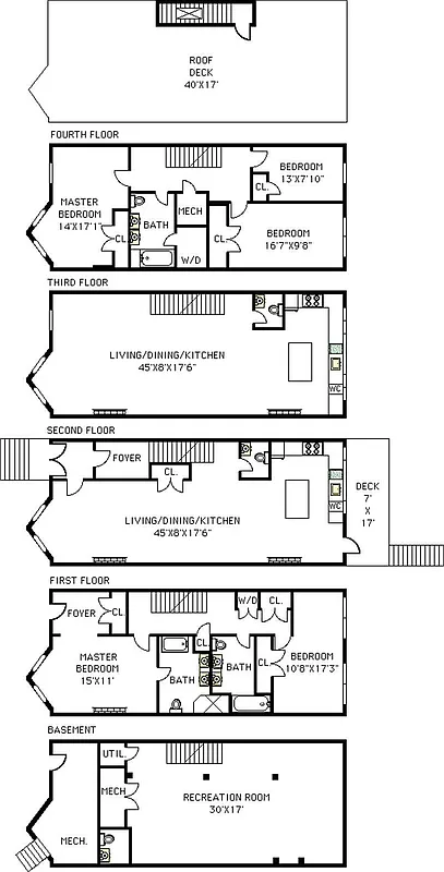
Set your eyes on the truly awe-inspiring and high income producing 282 Clifton Place. Historic Bed Stuy meets specialty classic design in this completely restored 2-family, 4-story residence. Great care was taken in the restoration to preserve the property back to the Brownstone Beauty it once was, while upgrading it with the modern amenities that today's discerning buyer desires.
Policies
Sorry, policy info isn’t available right now. Check back later.
Home features
No info on home features
Building amenities
No info on building amenities
About the building
282 Clifton Place
282 Clifton Place, Brooklyn, NY 11216
1 unit
- stories
2018 built
For sale
0 available units for saleFor rent
0 available units for rentDocuments and permits
View documents and permitsProperty history
- Price Change: No changes
- Days on market: 87 daysThis is the number of days the listing has been on StreetEasy.
| Date | Price | Event |
|---|---|---|
12/19/2016 | $2,695,000 | No longer available |
12/3/2016 | $2,695,000 | Listed by Corcoran |
12/2/2016 | $2,695,000 | No longer available |
9/23/2016 | $2,695,000 | Listed by Corcoran |
Sign in to take a closer look at how this home compares to similar homes.
Explore Bedford-Stuyvesant
Transit
| Location | Distance |
|---|---|
Gat Bedford–Nostrand Avs | 0.11 miles |
Gat Classon Av | 0.35 miles |
Gat Myrtle–Willoughby Avs | 0.5 miles |
ACSat Franklin Av | 0.53 miles |
ASat Franklin Av | 0.55 miles |
About Bedford-Stuyvesant
Rental prices shown are base rent before any fees. Visit listings for cost and fees breakdown.
SalesMedian asking price
5 beds
$2.44M
RentalsMedian asking base rent
5 beds
$6,300
Bedford-Stuyvesant is a vast Brooklyn neighborhood filled with historic brownstones. Fans of Victorian architecture will appreciate the striking abodes in the leafy historic district.
Learn more about Bedford-Stuyvesant





































































































































