View this home virtually
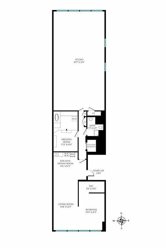
2,250 ft²
$802 per ft²
4 rooms
3 beds
2 baths
Co-op
- Flatiron
Resale
recorded sale
Sold on 9/12/2024
Verified by closing records
Last listed for $1,900,000
Seller's agent
This home has been saved by 273 users.
Listing by Sotheby's International Realty, Corporate Broker, 149 5th Avenue,, New York, NY 10010
Maintenance fees
$3,403/mo
Estimated payment
$13,136/mo
Legal disclaimerAll calculations are estimates provided by StreetEasy for informational purposes only. Actual amounts or financing terms may vary. Please contact your mortgage provider for specifics.Taxes
Included in maintenance fees
Tax abatement
No info
About
Seller’s agent
Buyer’s agent
description
LIVE/WORK! In Flatiron full-floor key-lock elevator Boutique Building in the heart Flatiron. Ascend into this spacious Loft with massive windows and three sunny exposures saturated with natural light. Boasting over 2,250 square feet +/- of living space, the expansive loft has 9‘ foot ceilings and open floor plan for entertaining.
This beautiful full floor loft features beamed ceilings, exposed brick walls & original maple floors, three sunny exposures and open views.
Policies
Pets allowed
Cats and dogs allowed
Home features
Dishwasher
View
City, Skyline
Washer/dryer
Building amenities
Services and facilities
Doorman
Virtual
Elevator
Wellness and recreation
No info on wellness and recreation
Shared outdoor space
No info on shared outdoor space
About the building
29 West 15th Street
29 West 15th Street, New York, NY 10011
10 units
10 stories
1905 built
For sale
0 available units for saleFor rent
0 available units for rentDocuments and permits
View documents and permitsProperty history
- Price Change: ↓ $100,000 (-5.0%) on 5/17/24
- Days on market: 218 daysThis is the number of days the listing has been on StreetEasy.
| Date | Price | Event |
|---|---|---|
9/12/2024 | $1,805,000 | Sold by Sotheby's International Realty |
7/17/2024 | $1,900,000 | In contract |
5/17/2024 | $1,900,000 | Price decreased by 5% |
2/15/2024 | $2,000,000 | Price decreased by 20% |
2/2/2024 | $2,495,000 | Listed by Sotheby's International Realty |
Past listing photos
Sign in to take a closer look at how this home compares to similar homes.
Explore Flatiron
Transit
| Location | Distance |
|---|---|
FLM123at 14th St | under 500 feet |
FLM123at 6th Av | 0.11 miles |
PATHat 14th Street Station | 0.12 miles |
LNQRW456at 14th St–Union Square | 0.22 miles |
1at 18th St | 0.29 miles |
About Flatiron
Rental prices shown are base rent before any fees. Visit listings for cost and fees breakdown.
SalesMedian asking price
3 beds
$3.79M
RentalsMedian asking base rent
3 beds
$14,900
Flatiron is a historic New York City neighborhood that has seen its fair share of change over the years. In the early 1900s, it was a major commercial and residential center. By the middle of the century, things stagnated as businesses and residents left in search of more space and lower rents. In recent years, stores, upscale restaurants, and new developments moved back in, and the neighborhood is seeing a significant resurgence. Fifth Avenue now bustles with some of the best shopping in the city, and restaurants run the gamut from Michelin-rated to Yelp-reviewed food trucks.
Flatiron is busiest at midday and cocktail hour and tends to quiet down a bit at night, although the lights never truly turn off. Proximity to Union Square and multiple subway lines make it an equally easy trip to Midtown or Downtown.












































































































































