- ft²
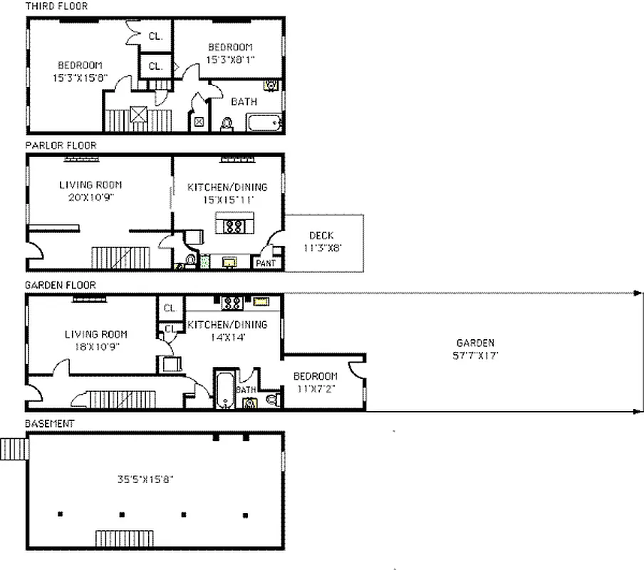
8 rooms
3 beds
2 baths
Two-family home
- Carroll Gardens
reported sale
Sold on 12/9/2013
Not yet verified by closing records
Seller's agents
Dennis McCarthy
Licensed Associate Real Estate Broker
Corcoran
This home has been saved by 41 users.
Listing by Corcoran, Limited Liability Broker, 245 Bedford Avenue, Brooklyn, NY 11211 | Brokerage Listing ID: 2766891
Common charges
Not applicable
Estimated payment
$8,877/mo
Legal disclaimerAll calculations are estimates provided by StreetEasy for informational purposes only. Actual amounts or financing terms may vary. Please contact your mortgage provider for specifics.Taxes
$306/mo
Tax abatement
No info
About
Seller’s agent
description
The quintessential Brooklyn Brownstone! This Boerum Hill 2 family townhouse, delivered vacant, is currently set up as a 2 bedroom upper duplex with a convertible 2 bedroom garden rental. Filled with period details, such as wide plank flooring, decorative mantles and crown moldings, this home offers all the character one might expect to find in a turn of the century brownstone.
Policies
Sorry, policy info isn’t available right now. Check back later.
Home features
Fireplace
Private outdoor space
Patio
Building amenities
No info on building amenities
About the building
295 Hoyt Street
295 Hoyt Street, Brooklyn, NY 11231
2 units
2 stories
1899 built
For sale
0 available units for saleFor rent
0 available units for rentDocuments and permits
View documents and permitsProperty history
- Price Change: ↓ $100,000 (-5.6%) on 9/21/13
- Days on market: 56 daysThis is the number of days the listing has been on StreetEasy.
| Date | Price | Event |
|---|---|---|
12/9/2013 | $1,725,000 | |
12/10/2013 | $1,695,000 | Sold by Corcoran |
12/9/2013 | $1,695,000 | No longer available |
10/9/2013 | $1,695,000 | In contract |
9/21/2013 | $1,695,000 | Price decreased by 6% |
Past listing photos
Sign in to take a closer look at how this home compares to similar homes.
Explore Carroll Gardens
Transit
| Location | Distance |
|---|---|
FGat Carroll St | 0.16 miles |
FGat Bergen St | 0.3 miles |
Rat Union St | 0.49 miles |
FGRat Smith–9th St | 0.55 miles |
ACGat Hoyt & Schermerhorn | 0.62 miles |
About Carroll Gardens
Rental prices shown are base rent before any fees. Visit listings for cost and fees breakdown.
SalesMedian asking price
3 beds
$3.26M
RentalsMedian asking base rent
3 beds
$8,450
Carroll Gardens is at once the heart of old-school Brooklyn and a showcase for the borough's brownstone boom. The neighborhood has long been known for its red-sauce Italian joints and lively street life. But now, staples like Caputo's Bake Shop and Monteleone's Bakery and Café abut upscale stroller shops, yoga studios and fro-yo joints. Despite the newcomers, the neighborhood still feels like a small town, one of the few places where you might know your neighbors, your postman and your butcher by name.
Learn more about Carroll Gardens





























































































































