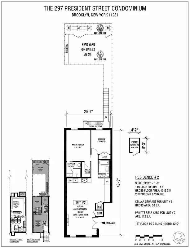
1,013 ft²
$1,924 per ft²
5 rooms
2 beds
2 baths
Four-family home
- Carroll Gardens
Sponsor unit
Sponsor unitA unit being sold for the first time. It’s typically owned by the building. For condos, this is often the developer. For co-ops, this is often the building’s original owner before it went co-op.
reported sale
Sold on 5/27/2022
Not yet verified by closing records
Seller's agents
This home has been saved by 110 users.
Listing by Park Property Advisors, Corporate Broker, 77 Sands Street, Brooklyn, NY 11201
Common charges
Not applicable
Estimated payment
$10,332/mo
Legal disclaimerAll calculations are estimates provided by StreetEasy for informational purposes only. Actual amounts or financing terms may vary. Please contact your mortgage provider for specifics.Taxes
$560/mo
Tax abatement
No info
About
Seller’s agent
description
A new townhouse condominium conversion by E C K S T R Ø M N Y C.
Located in one of just two streets that make up the landmark Carroll Gardens Historic District, the four residences at 297 President Street perfectly blend the minimalist Scandinavian design aesthetic in a beautiful Italianette style brownstone from the mid 1800’s. The smart layouts integrate wood and natural materials with an emphasis on maximizing natural light, clean lines and neutral colors.
Policies
Sorry, policy info isn’t available right now. Check back later.
Home features
Central air
Dishwasher
Fireplace
Decorative
Hardwood floors
Private outdoor space
Garden, Terrace
View
City, Garden
Washer/dryer
Building amenities
No info on building amenities
About the building
297 President Street
297 President Street, Brooklyn, NY 11231
4 units
3 stories
1920 built
For sale
0 available units for saleFor rent
0 available units for rentDocuments and permits
View documents and permitsProperty history
- Price Change: No changes
- Days on market: 13 daysThis is the number of days the listing has been on StreetEasy.
| Date | Price | Event |
|---|---|---|
5/27/2022 | $1,950,000 | Sold by Park Property Advisors |
2/10/2022 | $1,950,000 | In contract |
1/28/2022 | $1,950,000 | Listed by Park Property Advisors |
Past listing photos
Sign in to take a closer look at how this home compares to similar homes.
Explore Carroll Gardens
Transit
| Location | Distance |
|---|---|
FGat Carroll St | under 500 feet |
FGat Bergen St | 0.34 miles |
FGRat Smith–9th St | 0.47 miles |
Rat Union St | 0.61 miles |
ACGat Hoyt & Schermerhorn | 0.7 miles |
About Carroll Gardens
Rental prices shown are base rent before any fees. Visit listings for cost and fees breakdown.
SalesMedian asking price
2 beds
$1.5M
RentalsMedian asking base rent
2 beds
$5,695
Carroll Gardens is at once the heart of old-school Brooklyn and a showcase for the borough's brownstone boom. The neighborhood has long been known for its red-sauce Italian joints and lively street life. But now, staples like Caputo's Bake Shop and Monteleone's Bakery and Café abut upscale stroller shops, yoga studios and fro-yo joints. Despite the newcomers, the neighborhood still feels like a small town, one of the few places where you might know your neighbors, your postman and your butcher by name.
Learn more about Carroll Gardens





































































































































