$3,258
For Rent
Base rent only. For total monthly price and additional fees, see .
Rented 6/2/2017
- ft²
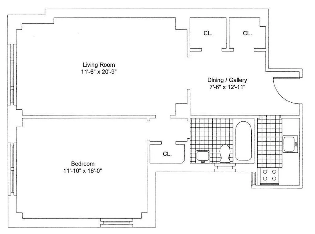
3 rooms
1 bed
1 bath
Rental unit
- Lenox Hill
Under NYC law, you can't be charged a broker fee if you didn't hire a broker.
Listed By
Michal Lifshitz
Licensed Real Estate Salesperson
Siderow Residential Group
This home has been saved by 26 users.
Listing by Siderow Residential Group, Limited Liability Broker, 11050 71st Road, Forest Hills, NY 11375 | Brokerage Listing ID: 565185
Unavailable
Rented on 6/2/2017
Days on market
53 days
Last price change
↓ $142 (-4.2%) on 5/4/17
About
Beautiful, Large apartment in Land-marked Limestone Mansion Just Steps From Central Park. High Vaulted Ceilings. Rich Oak Herringbone Floors Plus Other Amazing Prewar Details Throughout. Renovated Windowed Kitchen. Entry Foyer w/ 2 Massive Closets. Elevator Building w/ Beautiful Art Deco Lobby + Laundry in Basement. *Rent reflects a free month on a 2 year lease.*
Policies
Pets allowed
Home features
No info on home features
Building amenities
Services and facilities
Elevator
Wellness and recreation
No info on wellness and recreation
Shared outdoor space
No info on shared outdoor space
About the building
3 East 66th Street
3 East 66th Street, New York, NY 10065
27 units
9 stories
1934 built
Property history
Prices shown are base rent only. For total monthly price and additional fees, see .
| Date | Base rent | Event |
|---|---|---|
7/20/2017 | $3,258 | Rented by Siderow Residential Group |
6/2/2017 | $3,258 | No longer available |
5/19/2017 | $3,258 | In contract |
5/4/2017 | $3,258 | Price decreased by 4% |
3/27/2017 | $3,400 | Listed by Siderow Residential Group |
Past listing photos
Sign in to take a closer look at how this home compares to similar homes.
Explore Lenox Hill
Transit
| Location | Distance |
|---|---|
6at 68th St–Hunter College | 0.25 miles |
FQat Lexington Av/63rd St | 0.29 miles |
NRat 59th St | 0.3 miles |
NRW456at Lexington Av/59th St | 0.4 miles |
Fat 57th St | 0.49 miles |
Similar homes
Prices shown are base rent only and don't include any fees. Visit each listing to see a complete cost breakdown.
Similar Homes looks at ad spend and other factors like location, price, and number of beds and baths.


























































