$6,250
For Rent
Base rent only. For total monthly price and additional fees, see .
- ft²
4 rooms
2 beds
1 bath
Rental unit
- Upper West Side
Under NYC law, you can't be charged a broker fee if you didn't hire a broker.
Listed By
This home has been saved by 2 users.
Listing by Stonecrest Realty, Corporate Broker, 246 West 80th Street, New York, NY 10024
Available
Available now
Days on market
0 days
Last price change
No changes
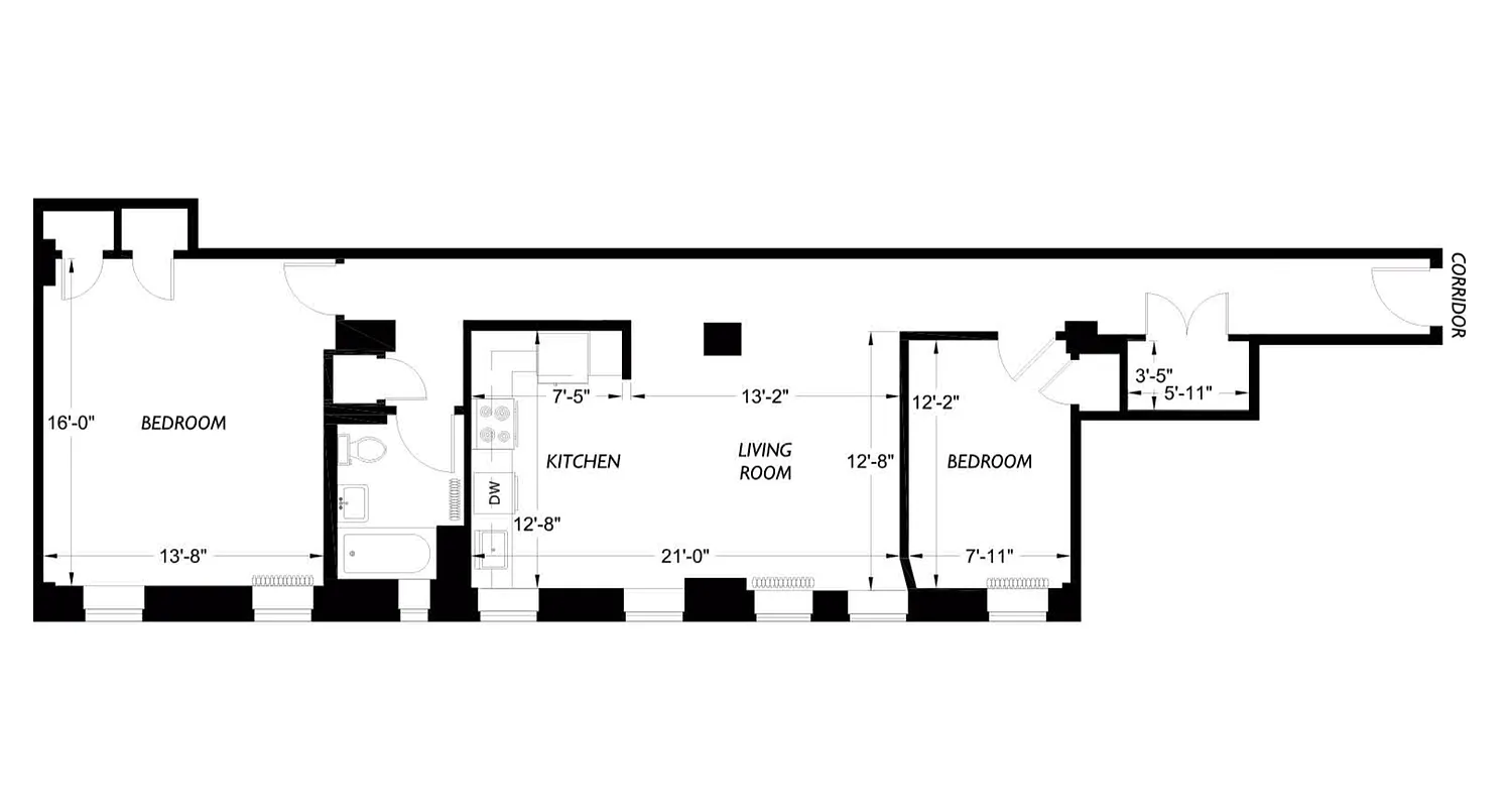
About
Located in a Classic Pre-War Doorman building. This 2 Bedroom Apartment has a spacious layout with direct access to Riverside Park.
There is an entry foyer with a large closet. Great for winter coats and boots.
There is an open windowed kitchen with modern full sized appliances, a dishwasher and a microwave, a custom black granite counter top and backsplash, plus generous cabinet space.
Policies
Sorry, policy info isnât available right now. Check back later.
Home features
Dishwasher
Hardwood floors
Building amenities
Services and facilities
Bike room
Doorman
Elevator
Live-in super
Wellness and recreation
Children's playroom
Shared outdoor space
No info on shared outdoor space
About the building
305 Riverside Drive
305 Riverside Drive, New York, NY 10025
63 units
12 stories
1911 built
Property history
Prices shown are base rent only. For total monthly price and additional fees, see .
| Date | Base rent | Event |
|---|---|---|
3/20/2026 | $6,250 | Listed by Stonecrest Realty |
3/8/2021 | $3,900 | |
3/8/2021 | $3,900 | Price increased by 1% |
2/25/2021 | $3,850 | Price decreased by 4% |
1/28/2021 | $3,995 | Price decreased by 3% |
Past listing photos
Sign in to take a closer look at how this home compares to similar homes.
Explore Upper West Side
Transit
| Location | Distance |
|---|---|
1at 103rd St | 0.15 miles |
1at Cathedral Parkwayâ110th St | 0.36 miles |
123at 96th St | 0.4 miles |
BCat 103rd St | 0.57 miles |
BCat 96th St | 0.63 miles |
About Upper West Side
Rental prices shown are base rent before any fees. Visit listings for cost and fees breakdown.
SalesMedian asking price
2 beds
$1.6M
RentalsMedian asking base rent
2 beds
$6,275
Sandwiched between two beautiful parks, the Upper West Side is one of the greenest spots in Manhattan. For that reason, it is a perennial favorite. The Upper West Side is relaxed, but never dull. There are plenty of low-key bars and restaurants to frequent along Amsterdam Avenue, and Broadway is an always-bustling commercial center. The wide, tree-lined streets still boast many mom-and-pop stores. Less posh than the Upper East Side, it is more easily accessible by public transportation, and real estate prices are just as, if not more, expensive.
Learn more about Upper West SideSimilar homes
Prices shown are base rent only and don't include any fees. Visit each listing to see a complete cost breakdown.
Similar Homes looks at ad spend and other factors like location, price, and number of beds and baths.




































































































