$2,495,000
For Sale
No longer available 6/1/2016
- ft²
10 rooms
5 beds
4 baths
Three-family home
- Fort Greene
Seller's agent
This home has been saved by 99 users.
Listing by Corcoran, Limited Liability Broker, 110 5th Avenue, New York, NY 10011 | Brokerage Listing ID: 3644103
Common charges
Not applicable
Estimated payment
$13,203/mo
Legal disclaimerAll calculations are estimates provided by StreetEasy for informational purposes only. Actual amounts or financing terms may vary. Please contact your mortgage provider for specifics.Taxes
$587/mo
Tax abatement
No info
About
Seller’s agent
description
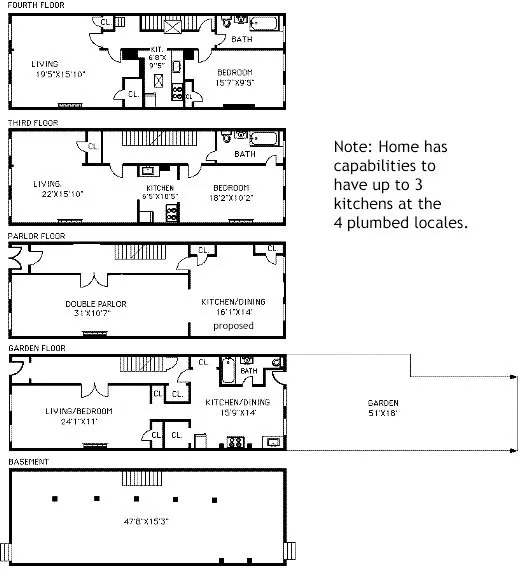
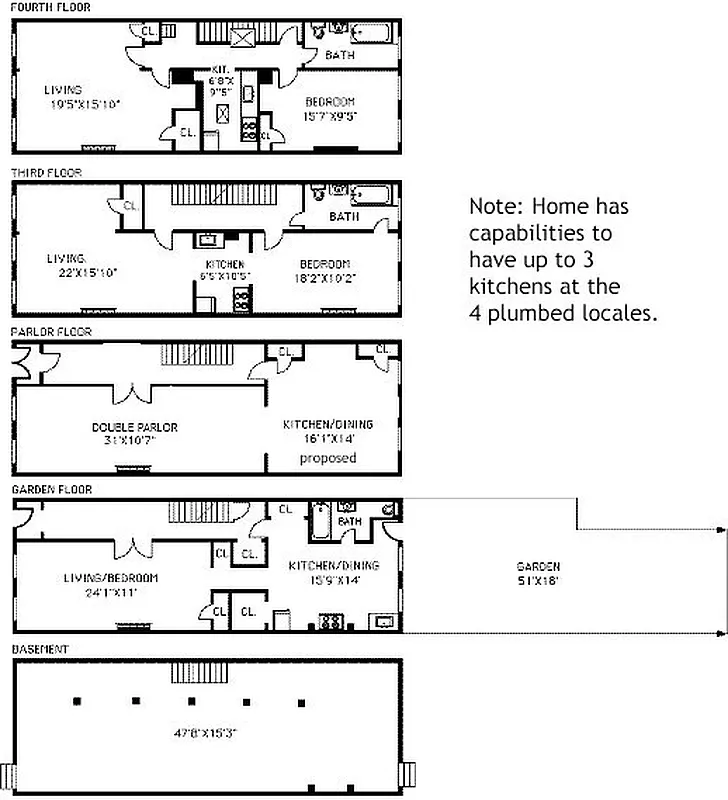
Classic Fort Greene 4 story, 3 unit major townhouse ready for a new buyer's extensive renovation. Construction loan financing or ALL CASH are most important for this transaction. The possibilities are endless with this almost 4000 sq foot home that still has amazing details and charm. Enter into a foyer that has wedding cake plaster work detail leading through grand oversized entry doors into a...
Policies
Sorry, policy info isn’t available right now. Check back later.
Home features
Private outdoor space
Patio
Building amenities
No info on building amenities
About the building
306 Clermont Avenue
306 Clermont Avenue, Brooklyn, NY 11205
3 units
3 stories
1900 built
For sale
0 available units for saleFor rent
0 available units for rentDocuments and permits
View documents and permitsProperty history
- Price Change: No changes
- Days on market: 98 daysThis is the number of days the listing has been on StreetEasy.
| Date | Price | Event |
|---|---|---|
12/11/2023 | $4,700,000 | |
5/2/2024 | $4,350,000 | |
11/3/2023 | $4,350,000 | |
10/23/2023 | $4,350,000 | |
9/1/2016 | $2,250,000 |
Past listing photos
Sign in to take a closer look at how this home compares to similar homes.
Explore Fort Greene
Transit
| Location | Distance |
|---|---|
Gat Clinton–Washington Avs | 0.14 miles |
Cat Lafayette Av | 0.24 miles |
Gat Fulton St | 0.33 miles |
Cat Clinton & Washington Avs | 0.38 miles |
LIRRat Atlantic Terminal | 0.45 miles |
About Fort Greene
Rental prices shown are base rent before any fees. Visit listings for cost and fees breakdown.
SalesMedian asking price
5 beds
$3.55M
RentalsMedian asking base rent
5 beds
$25,000
With bustling flea markets, a world-renowned performance space, trendy boutiques, fabulous restaurants, and a rich literary and artistic tradition, Fort Greene attracts residents looking for a slower pace of living without sacrificing the vibrancy of urban life. Historic brownstones and row houses make up most of the available real estate, and it's common to find neighbors catching up on their stoops. Intense Brooklyn pride is in evidence on the main drag of Fulton Street, where a Notorious B.I.G. quote is painted on the side of a prominent building - "Spread love it's the Brooklyn way."
Learn more about Fort Greene













































































































































