$550,000
For Sale
No longer available 1/20/2024
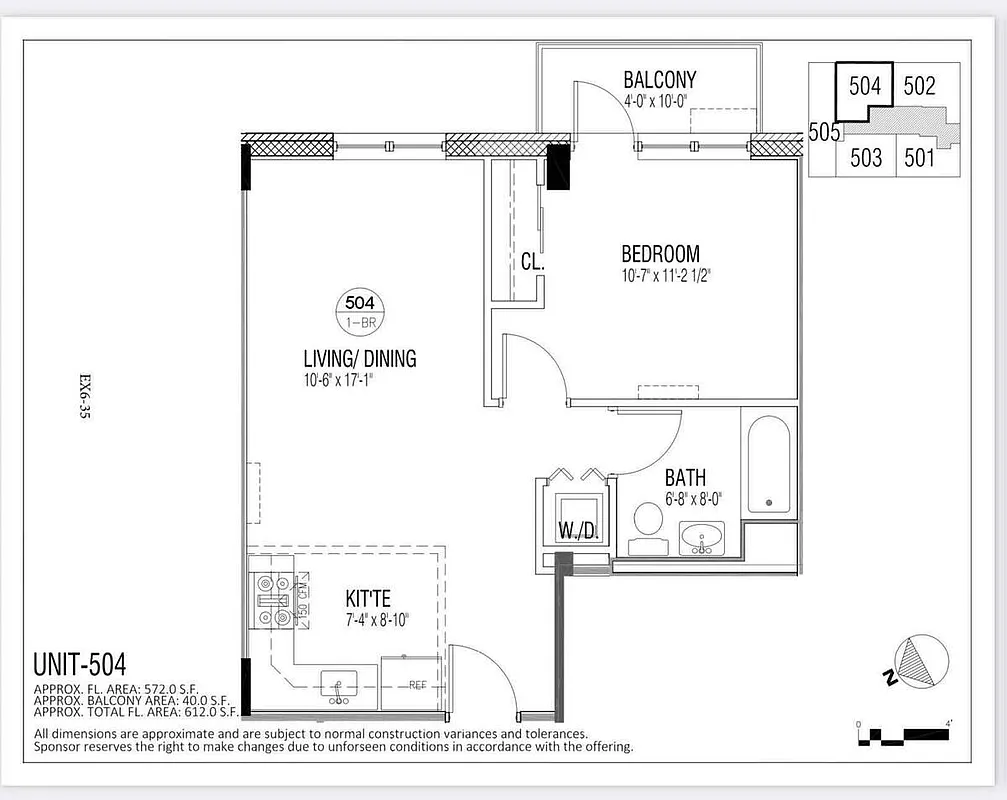
612 ft²
$898 per ft²
1 room
1 bed
1 bath
Rental unit
- Astoria
Sponsor unit
Sponsor unitA unit being sold for the first time. It’s typically owned by the building. For condos, this is often the developer. For co-ops, this is often the building’s original owner before it went co-op.
Seller's agent
This home has been saved by 33 users.
Listing by E Realty International Corp, Corporate Broker, 39 07 Prince Street, Flushing, NY 11354
Common charges
Not applicable
Estimated payment
$3,648/mo
Legal disclaimerAll calculations are estimates provided by StreetEasy for informational purposes only. Actual amounts or financing terms may vary. Please contact your mortgage provider for specifics.Taxes
$515/mo
Tax abatement
No info
About
Seller’s agent
description
Welcome to the new construction building in Astoria/Long Island City.
This unit is facing south which it provides a lot natural lights, One bedroom, one living room and one bathroom.
New construction condo building, very close to subway station. With the facing back of the building, you don’t hear the noise from subway in the front.
Washer and dryer can be installed in unit, hook up is ready.
Policies
Sorry, policy info isn’t available right now. Check back later.
Home features
Private outdoor space
Balcony
View
City
Building amenities
Services and facilities
Elevator
Parking
Garage
Wellness and recreation
No info on wellness and recreation
Shared outdoor space
No info on shared outdoor space
About the building
30-63 31st Street
30-63 31st Street, Astoria, NY 11102
23 units
7 stories
2017 built
For sale
0 available units for saleFor rent
0 available units for rentDocuments and permits
View documents and permitsProperty history
- Price Change: No changes
- Days on market: 110 daysThis is the number of days the listing has been on StreetEasy.
| Date | Price | Event |
|---|---|---|
4/20/2024 | $550,000 | No longer available |
1/20/2024 | $550,000 | Temporarily off market |
10/2/2023 | $550,000 | Listed by E Realty International Corp |
8/24/2023 | $565,000 | |
6/29/2023 | $565,000 | Price decreased by 2% |
Sign in to take a closer look at how this home compares to similar homes.
Explore Astoria
Transit
| Location | Distance |
|---|---|
NWat 30th Av | 0.12 miles |
NWat Broadway | 0.26 miles |
NWat Astoria Blvd | 0.42 miles |
MRat Steinway St | 0.5 miles |
NWat 36th Av | 0.69 miles |
About Astoria
Rental prices shown are base rent before any fees. Visit listings for cost and fees breakdown.
SalesMedian asking price
1 bed
$695K
RentalsMedian asking base rent
1 bed
$2,980
Home to some 160,000 residents, Astoria is a bustling neighborhood long known for its great ethnic food, busy commercial thoroughfares and charming single-family homes. Astoria's quick commute into Midtown Manhattan (15 minutes on the N, R, W, or M) and reasonable home prices, however, have recently begun to attract newcomers. New developments are now cropping up and changing the landscape, too. Now, the neighborhood's historic single-family homes and postwar co-op buildings are interspersed with condominiums and upscale rentals.
Learn more about Astoria




































































































