7,836 ft²
$1,008 per ft²
2 rooms
Studio
0 baths
Other type
- Murray Hill
reported sale
Sold on 11/7/2009
Not yet verified by closing records
Seller's agent
This home has been saved by 4 users.
Listing by Brown Harris Stevens, Real Estate Principal Office, 445 Park Avenue, New York, NY 10022 | MLS #: 6435
Common charges
Not applicable
Estimated payment
/mo
Legal disclaimerAll calculations are estimates provided by StreetEasy for informational purposes only. Actual amounts or financing terms may vary. Please contact your mortgage provider for specifics.Taxes
$53,883/mo
Tax abatement
No info
About
Seller’s agent
description
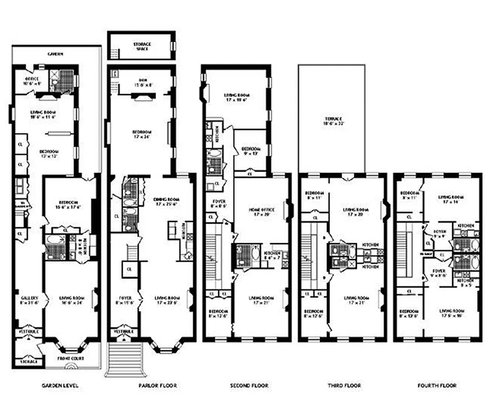
The five-story Italianate Masterpiece, in the heart of Midtown Manhattan, is a true Old World treasure. Built in 1869, this triumph once belonged to William Russell Grace, renowned philanthropist who was mayor to New York City. All of the initial exterior architectural features remain intact, including the massive stoop, balustrades, and roof cresting.
Policies
Sorry, policy info isn’t available right now. Check back later.
Home features
Private outdoor space
Building amenities
Sorry, building amenities aren't available right now. Check back later.
About the building
31 East 38th Street
31 East 38th Street, New York, NY 10016
- units
4 stories
1925 built
For sale
0 available units for saleFor rent
0 available units for rentDocuments and permits
View documents and permitsProperty history
- Price Change: ↓ $50,000 (-0.6%) on 6/3/09
- Days on market: 279 daysThis is the number of days the listing has been on StreetEasy.
| Date | Price | Event |
|---|---|---|
11/5/2009 | $7,450,000 | |
11/7/2009 | $7,900,000 | Sold by Brown Harris Stevens |
9/10/2009 | $7,900,000 | In contract |
6/3/2009 | $7,900,000 | Price decreased by 1% |
6/3/2009 | $7,900,000 | Listed by Brown Harris Stevens |
Sign in to take a closer look at how this home compares to similar homes.
Explore Murray Hill
Transit
| Location | Distance |
|---|---|
S4567at Grand Central–42nd St | 0.17 miles |
BDFM7at 5th Av | 0.23 miles |
6at 33rd St | 0.26 miles |
BDFM7at 42nd St | 0.33 miles |
BDFMNQRWat 34th St–Herald Sq | 0.35 miles |
About Murray Hill
Rental prices shown are base rent before any fees. Visit listings for cost and fees breakdown.
SalesMedian asking price
Studio
$425K
RentalsMedian asking base rent
Studio
$3,500
Murray Hill has a lively energy most hours of the day and night. In the morning, the streets are filled with professionals looking polished in their Brooks Brothers suits as they head to work. Come evening, you'll see the crowds returning home decked out in gym clothes and schlepping bags of take-out dinner and Trader Joe's. The neighborhood has a down-to-earth, casual vibe, and there's always a big game airing at one of the many sports bars along the Third Avenue strip. Many of Murray Hill's residents are renters who come and go, but the place eschews intransigence and maintains a familiar, college-town feel.
Learn more about Murray Hill






























































































































































