- ft²
1 room
Studio
1 bath
Co-op
- Yorkville
Resale
recorded sale
Sold on 7/5/2022
Verified by closing records
Last listed for $295,000
Seller's agents
This home has been saved by 194 users.
Listing by Avenues Real Estate, Real Estate Principal Office, 9 East 37th Street, New York, NY 10016
Maintenance fees
$850/mo
Estimated payment
$2,315/mo
Legal disclaimerAll calculations are estimates provided by StreetEasy for informational purposes only. Actual amounts or financing terms may vary. Please contact your mortgage provider for specifics.Taxes
Included in maintenance fees
Tax abatement
No info
About
Seller’s agent
Buyer’s agent
description
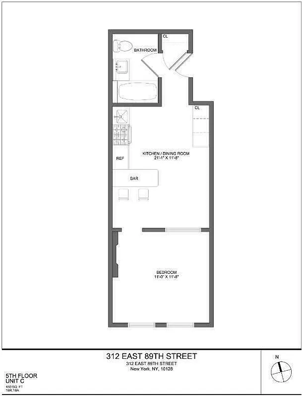
Renovated Apartment, Perfect Investment!
Welcome to this recently renovated Upper East Side / Yorkville starter apartment / pied-Ã -terre.
Nestled amongst the trees on a quiet street in the heart of the vibrant Upper East Side lies this sun-filled gem of an apartment. Located on East 89th Street between First and Second Avenues, this well cared for alcove studio has already been beautifully converted into a 1 bedroom apartment.
Policies
Guarantors accepted
Pets allowed
Cats only (no dogs)
Pied-a-terre allowed
Home features
Fireplace
Hardwood floors
Building amenities
Services and facilities
Laundry in building
Wellness and recreation
No info on wellness and recreation
Shared outdoor space
No info on shared outdoor space
About the building
312 East 89th Street
312 East 89th Street, New York, NY 10128
20 units
5 stories
1960 built
For sale
0 available units for saleFor rent
0 available units for rentDocuments and permits
View documents and permitsProperty history
- Price Change: No changes
- Days on market: 28 daysThis is the number of days the listing has been on StreetEasy.
| Date | Price | Event |
|---|---|---|
7/5/2022 | $295,000 | Sold by Avenues Real Estate |
4/3/2022 | $295,000 | In contract |
3/6/2022 | $295,000 | Listed by Avenues Real Estate |
11/10/2021 | $310,000 | |
11/4/2021 | $310,000 | Price decreased by 5% |
Past listing photos
Sign in to take a closer look at how this home compares to similar homes.
Explore Yorkville
Transit
| Location | Distance |
|---|---|
Qat 86th St | 0.13 miles |
Qat 96th St | 0.27 miles |
456at 86th St | 0.3 miles |
6at 96th St | 0.45 miles |
6at 77th St | 0.65 miles |
About Yorkville
Rental prices shown are base rent before any fees. Visit listings for cost and fees breakdown.
SalesMedian asking price
Studio
$399K
RentalsMedian asking base rent
Studio
$2,900
When George Washington commandeered the building site that would eventually become Gracie Mansion, he probably didn't imagine that this peaceful, riverside enclave would become the lively residential neighborhood it is today. Between then and now, Yorkville has seen a lot of change. Tony mansions and elevated trains went up at the turn of the century and then came down in the postwar years as a middle-class population moved in.
Now, the neighborhood is a haven of high-rise co-ops and condos interspersed with quiet rows of townhouses. The mixed housing stock makes Yorkville a practical choice for anyone seeking a slowed-down Manhattan vibe. Several avenues over from the throngs of Lexington and Third Avenues, Yorkville maintains a low-key, no-frills feel — it's a place where you'll find more diners and donut shops than upscale lounges and boutiques. This homey attitude is writ in its storefronts, where the food is kept simple and the owners are often from around the block.


















































































































