View this home virtually
$3,150
For Rent
Base rent only. For total monthly price and additional fees, see .
No longer available 6/10/2025
- ft²
1 room
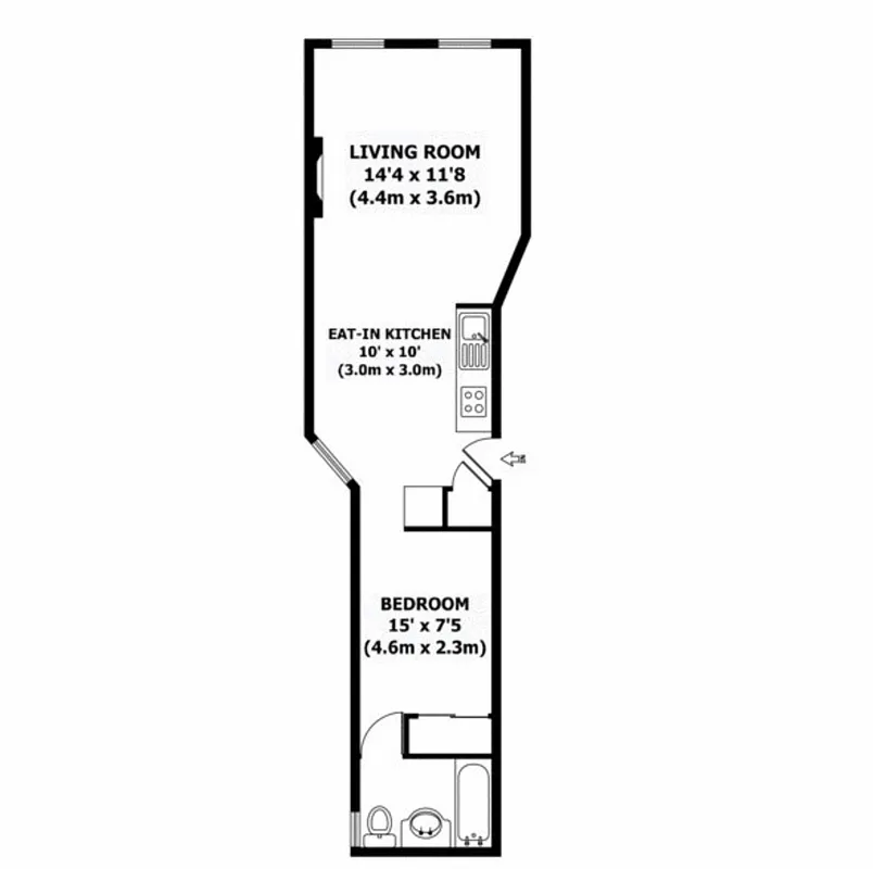
1 bed
1 bath
Co-op
- Lenox Hill
Under NYC law, you can't be charged a broker fee if you didn't hire a broker.
Listed By
This home has been saved by 21 users.
Listing by Real Broker NY LLC, Real Estate Principal Office, 477 Madison Avenue, New York, NY 10022
Unavailable
No longer available on 6/10/2025
Days on market
4 days
Last price change
No changes
About
Please note: This apartment is furnished and there is no option to take it unfurnished.
This charming furnished junior 1-bedroom apartment is located on a quiet, tree-lined street in the heart of the Upper East Sideâjust around the corner from Target, great shopping, and a wide variety of restaurants.
Bright and inviting, the south-facing unit gets great natural light throughout the day.
Policies
Co-purchase allowed
Guarantors accepted
Parents buying allowed
Pied-a-terre allowed
Sublets allowed
Home features
Dishwasher
Furnished
Hardwood floors
View
City
Building amenities
No info on building amenities
About the building
317 East 73rd Street
317 East 73rd Street, New York, NY 10021
20 units
5 stories
1910 built
Property history
Prices shown are base rent only. For total monthly price and additional fees, see .
| Date | Base rent | Event |
|---|---|---|
9/9/2025 | $3,150 | No longer available |
6/10/2025 | $3,150 | Temporarily off market |
6/6/2025 | $3,150 | Listed by Real Broker NY LLC |
7/30/2024 | $3,100 | |
6/30/2024 | $3,100 |
Past listing photos
Sign in to take a closer look at how this home compares to similar homes.
Explore Lenox Hill
Transit
| Location | Distance |
|---|---|
Qat 72nd St | under 500 feet |
6at 77th St | 0.33 miles |
6at 68th StâHunter College | 0.39 miles |
Qat 86th St | 0.52 miles |
FQat Lexington Av/63rd St | 0.59 miles |
Similar homes
Prices shown are base rent only and don't include any fees. Visit each listing to see a complete cost breakdown.
Similar Homes looks at ad spend and other factors like location, price, and number of beds and baths.




























































