$6,050
For Rent
Base rent only. For total monthly price and additional fees, see .
Rented 4/30/2024
- ft²
5 rooms
2 beds
2 baths
Co-op
- Yorkville
Under NYC law, you can't be charged a broker fee if you didn't hire a broker.
Listed By
This home has been saved by 72 users.
Listing by Douglas Elliman, Limited Liability Broker, 575 Madison Avenue -, New York, NY 10022 | Brokerage Listing ID: 22983227
Unavailable
Rented on 4/30/2024
Days on market
12 days
Last price change
↑ $1,050 (+14.8%) on 4/16/24
About
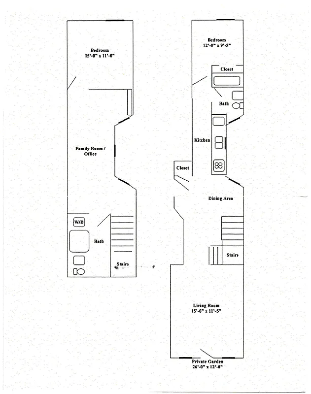
Enjoy barbecuing from your private outdoor deck! Townhouse living in this wonderful duplex home with oak floors, exposed brick, through wall A/C & high ceilings. There is a large windowed & renovated chef’s kitchen with stainless steel appliances plus a windowed dining area. Two large bedrooms(one with loft storage), two full baths plus a den/office and washer/dryer.
Policies
Pets allowed
Cats and dogs allowed
Pied-a-terre allowed
Sublets allowed
Home features
Dishwasher
Hardwood floors
Private outdoor space
Garden, Terrace
Washer/dryer
Building amenities
Services and facilities
Live-in super
Wellness and recreation
No info on wellness and recreation
Shared outdoor space
Courtyard
About the building
327 East 93rd Street
327 East 93rd Street, New York, NY 10128
10 units
5 stories
1920 built
Property history
Prices shown are base rent only. For total monthly price and additional fees, see .
| Date | Base rent | Event |
|---|---|---|
4/30/2024 | $6,050 | Rented by Douglas Elliman |
4/16/2024 | $6,050 | In contract |
4/16/2024 | $6,050 | Price increased by 21% |
4/4/2024 | $5,000 | Listed by Douglas Elliman |
8/28/2020 | $4,100 |
Past listing photos
Sign in to take a closer look at how this home compares to similar homes.
Explore Yorkville
Transit
| Location | Distance |
|---|---|
Qat 96th St | under 500 feet |
6at 96th St | 0.33 miles |
Qat 86th St | 0.36 miles |
456at 86th St | 0.46 miles |
6at 103rd St | 0.57 miles |
About Yorkville
Rental prices shown are base rent before any fees. Visit listings for cost and fees breakdown.
SalesMedian asking price
2 beds
$1.45M
RentalsMedian asking base rent
2 beds
$5,647
When George Washington commandeered the building site that would eventually become Gracie Mansion, he probably didn't imagine that this peaceful, riverside enclave would become the lively residential neighborhood it is today. Between then and now, Yorkville has seen a lot of change. Tony mansions and elevated trains went up at the turn of the century and then came down in the postwar years as a middle-class population moved in.
Now, the neighborhood is a haven of high-rise co-ops and condos interspersed with quiet rows of townhouses. The mixed housing stock makes Yorkville a practical choice for anyone seeking a slowed-down Manhattan vibe. Several avenues over from the throngs of Lexington and Third Avenues, Yorkville maintains a low-key, no-frills feel — it's a place where you'll find more diners and donut shops than upscale lounges and boutiques. This homey attitude is writ in its storefronts, where the food is kept simple and the owners are often from around the block.
Similar homes
Prices shown are base rent only and don't include any fees. Visit each listing to see a complete cost breakdown.
Similar Homes looks at ad spend and other factors like location, price, and number of beds and baths.


























































































































