$5,775
For Rent
Base rent only. For total monthly price and additional fees, see .
Rented 7/11/2019
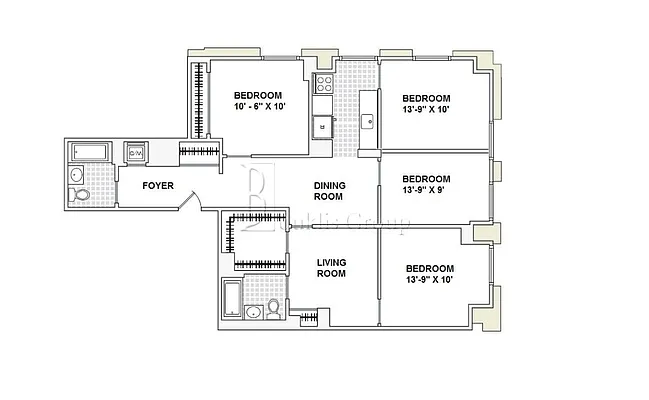
1,399 ft²
$49 per ft²
6 rooms
4 beds
2 baths
Condo
- Financial District
Under NYC law, you can't be charged a broker fee if you didn't hire a broker.
Listed By
Fidi NYC
Bouklis Group
This home has been saved by 6 users.
Listing by Bouklis Group, Corporate Broker | Brokerage Listing ID: 182987
Unavailable
Rented on 7/11/2019
Days on market
0 days
Last price change
No changes
About
Coming soon...
Policies
Pets allowed
Cats and dogs allowed
Home features
Dishwasher
Washer/dryer
Building amenities
Services and facilities
Bike room
Doorman
Part-time
Elevator
Laundry in building
Parking
Garage
Wellness and recreation
No info on wellness and recreation
Shared outdoor space
Deck
Roof deck
About the building
33 Rector Street
33 Rector Street, New York, NY 10006
13 units
15 stories
1920 built
Property history
Prices shown are base rent only. For total monthly price and additional fees, see .
| Date | Base rent | Event |
|---|---|---|
7/12/2019 | $5,775 | Rented by Bouklis Group |
7/11/2019 | $5,775 | No longer available |
Past listing photos
Sign in to take a closer look at how this home compares to similar homes.
Explore Financial District
Transit
| Location | Distance |
|---|---|
1at Rector St | under 500 feet |
RWat Rector St | 0.1 miles |
45at Wall St | 0.16 miles |
JZat Broad St | 0.23 miles |
RWat Cortlandt St | 0.24 miles |
About Financial District
Rental prices shown are base rent before any fees. Visit listings for cost and fees breakdown.
SalesMedian asking price
4 beds
$5.7M
RentalsMedian asking base rent
4 beds
$8,225
During the day, the Financial District can be chaotic with an influx of office workers and tourists attracted to the many historical sites, museums, and phenomenal views the neighborhood offers. After the workday crowds clear, the neighborhood becomes quiet and calm. Nightlife is confined to a few small areas, as most residents return to their amenity-rich buildings and rooftop patios.
Learn more about Financial DistrictSimilar homes
Prices shown are base rent only and don't include any fees. Visit each listing to see a complete cost breakdown.
Similar Homes looks at ad spend and other factors like location, price, and number of beds and baths.






















































































































