3,762 ft²
$890 per ft²
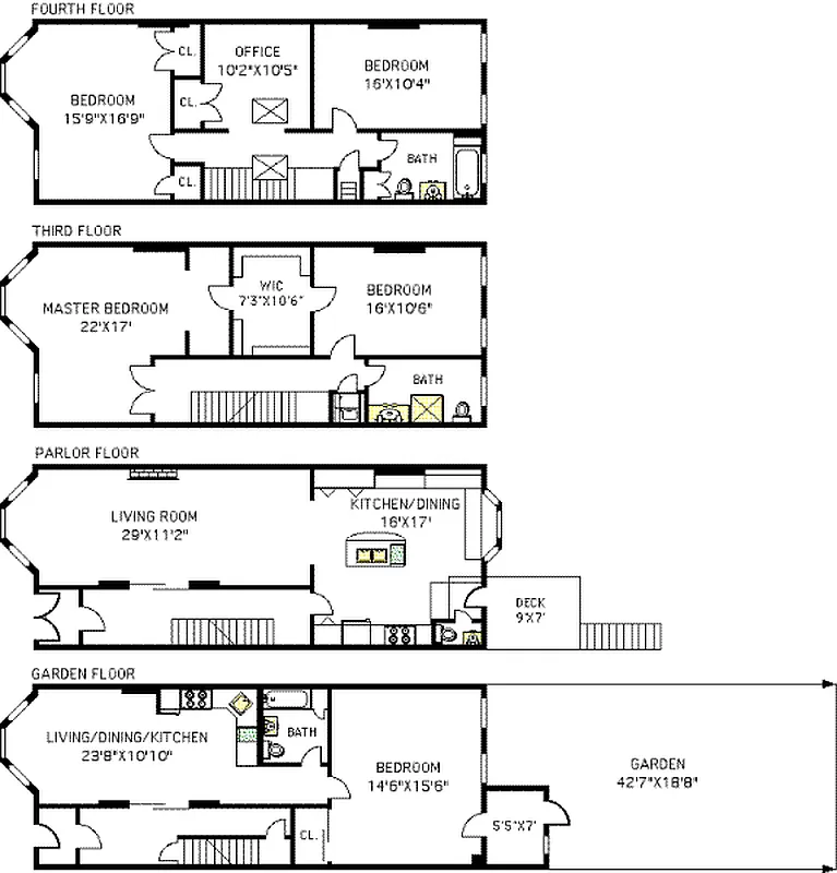
12 rooms
6 beds
3.5 baths
Two-family home
- Park Slope
reported sale
Sold on 5/1/2014
Not yet verified by closing records
Seller's agent
This home has been saved by 13 users.
Listing by Corcoran, Limited Liability Broker, 125 Seventh Avenue, Brooklyn, NY 11215 | Brokerage Listing ID: 3016827
Common charges
Not applicable
Estimated payment
$16,939/mo
Legal disclaimerAll calculations are estimates provided by StreetEasy for informational purposes only. Actual amounts or financing terms may vary. Please contact your mortgage provider for specifics.Taxes
No info
Tax abatement
No info
About
Seller’s agent
description
Magnificent 4 Story Brownstone on one of Park Slope's most beautiful blocks. Currently configured as a 4+ bedroom triplex over a 1 bedroom garden apartment but can easily be converted to a single family home. Expertly renovated blending original details with modern luxury and convenience. Enter the triplex through beautifully restored double wood doors that give way to the interior foyer of the parlor level.
Policies
Sorry, policy info isn’t available right now. Check back later.
Home features
No info on home features
Building amenities
No info on building amenities
About the building
337 1st Street
337 1st Street, Brooklyn, NY 11215
2 units
3 stories
1901 built
For sale
0 available units for saleFor rent
0 available units for rentDocuments and permits
View documents and permitsProperty history
- Price Change: No changes
- Days on market: 14 daysThis is the number of days the listing has been on StreetEasy.
| Date | Price | Event |
|---|---|---|
5/1/2014 | $3,350,000 | |
3/20/2015 | $3,350,000 | Sold by Corcoran |
5/1/2014 | $3,350,000 | No longer available |
5/1/2014 | $3,350,000 | No longer available |
1/28/2014 | $3,350,000 | In contract |
Past listing photos
Sign in to take a closer look at how this home compares to similar homes.
Explore Park Slope
Transit
| Location | Distance |
|---|---|
Rat Union St | 0.24 miles |
FGRat 9th St | 0.44 miles |
Fat 7th Av | 0.46 miles |
Fat 4th Av | 0.49 miles |
BQat 7th Av | 0.51 miles |
About Park Slope
Rental prices shown are base rent before any fees. Visit listings for cost and fees breakdown.
SalesMedian asking price
6 beds
$4.65M
Park Slope has a tranquil, easygoing vibe and can almost feel suburban. Strollers and children of all ages are a constant presence on sidewalks, as are shoppers patronizing local boutiques and dog walkers heading up to the park. Residents are Brooklynites through and through and tend to be socially conscious, artistically minded, and committed to their community. At night, a casual restaurant scene comes alive. For anyone looking for a night out, there are plenty of beer gardens and wine bars to patronize, especially in the South Slope, but don't go looking for dance clubs.
Learn more about Park Slope













































































































