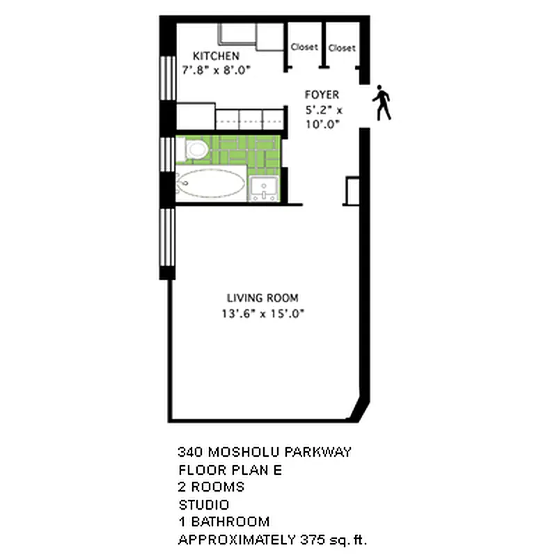
375 ft²
$290 per ft²
2 rooms
Studio
1 bath
Co-op
- Bedford Park
Sponsor unit
Sponsor unitA unit being sold for the first time. It’s typically owned by the building. For condos, this is often the developer. For co-ops, this is often the building’s original owner before it went co-op.
recorded sale
Sold on 11/2/2022
Verified by closing records
Last listed for $109,900
Seller's agent
This home has been saved by 24 users.
Listing by Houlihan Lawrence, Corporate Broker, 4 Valley Road, Bronxville, NY 10708
Maintenance fees
$429/mo
Estimated payment
$969/mo
Legal disclaimerAll calculations are estimates provided by StreetEasy for informational purposes only. Actual amounts or financing terms may vary. Please contact your mortgage provider for specifics.Taxes
Included in maintenance fees
Tax abatement
No info
About
Seller’s agent
description
340 E MOSHOLU PARKWAY S. Apt. 2-E SPONSOR UNIT (No Board Approval) 375 s/f STUDIO/1 BA w/ windowed Kitchen & Bath facing southeast onto Marion Avenue. Intimate 53 unit Art-Moderne elevator building attributed to Joseph Schafran & Thomas Dunn, Architects ca. 1937. Original extant pre-war details include basketweave parquet floors & plaster archways. resident supt. & on-site laundry.
Policies
Sorry, policy info isn’t available right now. Check back later.
Home features
Hardwood floors
View
City
Building amenities
Services and facilities
Laundry in building
Live-in super
Wellness and recreation
No info on wellness and recreation
Shared outdoor space
No info on shared outdoor space
About the building
340 East Mosholu Parkway South
340 East Mosholu Parkway South, Bronx, NY 10458
56 units
6 stories
1937 built
For sale
3 available units for saleFor rent
0 available units for rentDocuments and permits
View documents and permitsProperty history
- Price Change: No changes
- Days on market: 57 daysThis is the number of days the listing has been on StreetEasy.
| Date | Price | Event |
|---|---|---|
11/2/2022 | $109,000 | Sold by Houlihan Lawrence |
8/12/2022 | $109,900 | In contract |
6/16/2022 | $109,900 | Listed by Houlihan Lawrence |
Past listing photos
Sign in to take a closer look at how this home compares to similar homes.
Explore Bedford Park
Transit
| Location | Distance |
|---|---|
BDat Bedford Park Blvd | 0.29 miles |
Dat Norwood–205th St | 0.34 miles |
4at Bedford Park Blvd–Lehman College | 0.44 miles |
BDat Kingsbridge Rd | 0.58 miles |
4at Mosholu Parkway | 0.63 miles |

































































































































