$895,000
For Sale
No longer available 11/18/2017
- ft²
3 rooms
1 bed
1 bath
Co-op
- West Village
Seller's agent
This home has been saved by 76 users.
Listing by Maz Group NY, Limited Liability Broker, 135 West 50th Street, New York, NY 10020 | Brokerage Listing ID: 1713497
Maintenance fees
$1,062/mo
Estimated payment
$5,588/mo
Legal disclaimerAll calculations are estimates provided by StreetEasy for informational purposes only. Actual amounts or financing terms may vary. Please contact your mortgage provider for specifics.Taxes
Included in maintenance fees
Tax abatement
No info
About
Sellerâs agent
description
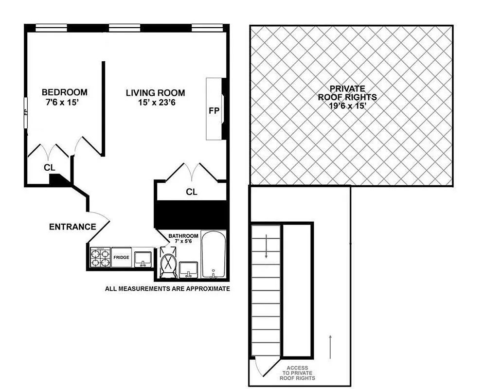
Elegant top-floor one-bedroom apartment in a 1833 landmarked building, in the heart of the West Village. Abundant light, gorgeous southern views, and phenomenal private roof rights! The apartment features a modern, stainless steel kitchen, excellent custom-built bookshelves designed by a renowned French artist, a fully renovated bathroom with skylight, and generous storage throughout.
Policies
Pied-a-terre allowed
Home features
Fireplace
Building amenities
Services and facilities
Bike room
Storage space
Wellness and recreation
No info on wellness and recreation
Shared outdoor space
Roof deck
About the building
343 West 12th Street
343 West 12th Street, New York, NY 10014
11 units
5 stories
1900 built
For sale
0 available units for saleFor rent
0 available units for rentDocuments and permits
View documents and permitsProperty history
- Price Change: No changes
- Days on market: 10 daysThis is the number of days the listing has been on StreetEasy.
| Date | Price | Event |
|---|---|---|
11/18/2017 | $895,000 | No longer available |
11/8/2017 | $895,000 | Listed by Maz Group NY |
10/26/2016 | $807,000 | |
10/28/2016 | $730,000 | |
7/21/2016 | $730,000 |
Past listing photos
Sign in to take a closer look at how this home compares to similar homes.
Explore West Village
Transit
| Location | Distance |
|---|---|
ACELat 8th Av | 0.26 miles |
ACELat 14th St | 0.28 miles |
PATHat Christopher Street Station | 0.32 miles |
FLM123at 14th St | 0.33 miles |
1at Christopher StâSheridan Sq | 0.35 miles |
About West Village
Rental prices shown are base rent before any fees. Visit listings for cost and fees breakdown.
SalesMedian asking price
1 bed
$1.28M
RentalsMedian asking base rent
1 bed
$5,495
Picture a romantic comedy set in New York City: The heroine invariably lives in a cozy walk-up on a cobblestone street in a neighborhood with cute boutiques and trendy cafes on every corner. This movie is set in the West Village. In reality, the West Village is just as picturesque: The neighborhood is tucked between Greenwich Village and the Hudson River and is one of the quietest and most sophisticated pockets of Downtown Manhattan. Primarily residential, with a distinct lack of office buildings, the leafy, off-the-grid streets are peaceful during the day but get livelier at night. That's when well-heeled residents, fashionistas, and literati can all be found mingling over oysters at the area's many low-lit cocktail bars.
Learn more about West Village







































































