- ft²
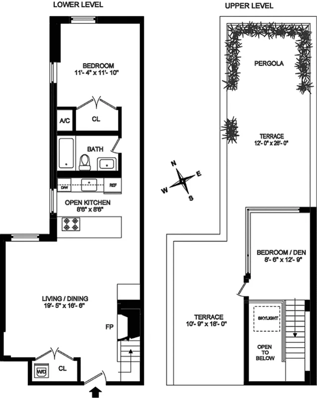
4 rooms
2 beds
1 bath
Co-op
- Chelsea
reported sale
Sold on 5/21/2014
Not yet verified by closing records
Seller's agents
This home has been saved by 74 users.
Listing by Douglas Elliman, Limited Liability Broker, 111 5th Avenue, New York, NY 10003 | Brokerage Listing ID: 1702236
Maintenance fees
$903/mo
Estimated payment
$7,451/mo
Legal disclaimerAll calculations are estimates provided by StreetEasy for informational purposes only. Actual amounts or financing terms may vary. Please contact your mortgage provider for specifics.Taxes
Included in maintenance fees
Tax abatement
No info
About
Seller’s agent
description
Chelsea penthouse two bedroom with private terrace and wood-burning fireplace! This architecturally designed space maximizes volume and light with a modern eye. The seventeen foot ceiling over the entry gallery allows the light to cascade throughout the space welcoming you into the home. The living area is very comfortable and flanked by a wood-burning fireplace and floor to ceiling north-facing picture window with open views.
Policies
Guarantors accepted
Pets allowed
Cats and dogs allowed
Home features
Fireplace
Building amenities
No info on building amenities
About the building
357 West 29th Street
357 West 29th Street, New York, NY 10001
23 units
7 stories
1921 built
For sale
0 available units for saleFor rent
0 available units for rentDocuments and permits
View documents and permitsProperty history
- Price Change: ↑ $45,000 (+3.4%) on 2/6/14
- Days on market: 23 daysThis is the number of days the listing has been on StreetEasy.
| Date | Price | Event |
|---|---|---|
2/10/2016 | $1,295,000 | Sold by Douglas Elliman |
5/21/2014 | $1,295,000 | No longer available |
5/21/2014 | $1,295,000 | No longer available |
2/28/2014 | $1,295,000 | In contract |
2/6/2014 | $1,295,000 | Price increased by 4% |
Past listing photos
Sign in to take a closer look at how this home compares to similar homes.
Explore Chelsea
Transit
| Location | Distance |
|---|---|
123ACEat 34th St–Penn Station | 0.22 miles |
LIRRat Penn Station | 0.23 miles |
CEat 23rd St | 0.24 miles |
1at 28th St | 0.3 miles |
7at 34 St Hudson Yards | 0.36 miles |
About Chelsea
Rental prices shown are base rent before any fees. Visit listings for cost and fees breakdown.
SalesMedian asking price
2 beds
$2.25M
RentalsMedian asking base rent
2 beds
$7,800
If you're looking for a staid, quiet place to live, Chelsea is not for you. Its thriving arts scene has always been a big draw for creative types. Not surprisingly, residents pay a high price to live in such a hip and happening part of Manhattan. The neighborhood has some of the most exclusive restaurants and bars in the city, and real estate prices are steep — especially for new condos along the High Line.
Slip down many of the side streets, however, and you're likely to find some beautiful and historic townhouses nestled gracefully within the neighborhood's hustle and bustle.















































































































